




Wohnung zum Kauf1795000 €10.436 €/m²4 Zimmer • 172 m² • 2. Geschoss
1795000 €
10.436 €/m²
4 Zimmer • 172 m² • 2. Geschoss
Verkauft! Exklusive 5 - Morgen Residenz: 172 m² mit Kamin, Lift & Sonnenterrasse
Merkmale
- Bezug: nach Absprache kurzfristig möglich
- 2. Geschoss
- Einbauküche
- Personenaufzug
- Kelleranteil
- Tiefgarage
- Gäste-WC
- Balkon
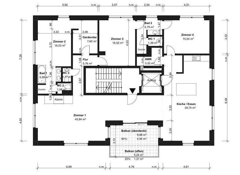
Grundrisse
Grundrisse
1 / 1
Realisiere Dein Projekt
Bausubstanz und Energie
Energieausweis
A
- Baujahr2014
- Zustand der Immobilieneuwertig
- HeizungsartFußbodenheizung
Preisdetails
Kaufpreis
1795000 €
10.436,05 €/m²
Hausgeld
945 €
Provision für Käufer
3,57% inkl. MwSt.
Die Courtage beträgt für beide Parteien (Eigentümer und Käufer) jeweils die gleiche Höhe auf den beurkundeten Kaufpreis inkl. der gesetzlichen Umsatzsteuer. Weitere Informationen siehe Provisionshinweis.
Die Courtage beträgt für beide Parteien (Eigentümer und Käufer) jeweils die gleiche Höhe auf den beurkundeten Kaufpreis inkl. der gesetzlichen Umsatzsteuer. Weitere Informationen siehe Provisionshinweis.
Weitere Preisinformationen
1 Tiefgaragenstellplatz
Geschätzte Gesamtkosten
2.002.681 €1
Kaufpreis
1.795.000 €
Kaufnebenkosten
207.681 €
2Notarkosten (1,5%)
26.925 €
Grunderwerbsteuer (6%)
107.700 €
Provision für Käufer (3,57%)
64.081 €
Grundbucheintrag (0,5%)
8.975 €
1Der angezeigte Wert ist eine automatisch berechnete Schätzung von immowelt.
2Bei den Angaben handelt es sich um ortsübliche Werte. Individuelle Kosten können abweichen.
Lage

Dahlem, Berlin (14195)
Der Anbieter hat die genaue Adresse nicht freigegeben
Weitere Informationen
Weitere Services
Lust auf eine Besichtigung?
Eine Frage zur Immobilie?
Über den Anbieter
Online-ID: 2nrta59
Referenznummer: 12SB2655-FÜNF MORGEN
Wie zufrieden bist du mit dieser Seite (nicht mit der Immobilie selbst)?




