Doppelhaushälfte zum Kauf - Erstbezug • provisionsfrei
565000 €565.000 €
4.913 €/m²
4 Zimmer • 115 m² • 322,5 m² Grundstück
Massivbau KFW, Fix Preis Mitten im Zentrum/Traumlage (letzte hälfte)
Die Projektplanung sieht vor das dieses Objekt über die Domus Regiobau GmbH gebaut wird, diese ist schon seid Jahren ein zuverlässiger und effektiver Partner wenn es um den Bau von Häusern rund um die Region Schwabmünchen geht. Bei dem Objekt ist es aktuell noch möglich auf jegliche Wünsche im Rahmen des gezeigten Bauplans einzugehen genauso auch von der inneren Planung sind Ihnen noch alle Möglichkeiten offen.
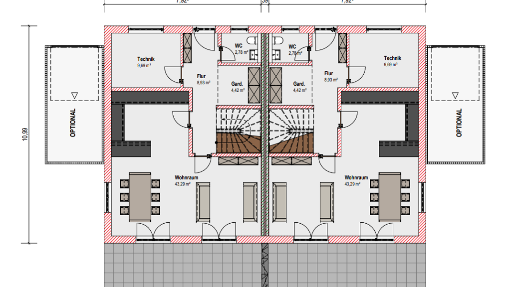
Entdecken Sie Ihr neues Zuhause in dieser charmanten Doppelhaushälfte, die zum Kauf angeboten wird. Mit einer Wohnfläche von 115 m² bietet dieses Haus ausreichend Platz für Familien und Komfortliebhaber.
Die Immobilie verfügt über 4 Zimmer, darunter 3 geräumige Schlafzimmer, die Ruhe und Privatsphäre versprechen. Ein modernes Badezimmer sorgt für Bequemlichkeit und Stil.
Das Grundstück mit einer Größe von 322 m² bietet Ihnen die Möglichkeit, Ihren grünen Daumen auszuleben oder einfach nur zu entspannen. Ein besonderes Highlight ist die nahezu Einmalige Lage mitten in der Stadt.
Der kauf läuft wie folgt ab:
Sie erwerben das Grundstück zu 190.000€ zzgl. allen Kaufnebenkosten sowie Maklergebühr (4%zzgl.Mwst). Dann erfolgt der Bauauftrag an die Domus, auf die 348.000€ Baukosten fallen jedoch keine Kaufnebenkosten von ca.9-10% an, da der Bauauftrag unabhängig vom Kaufvertrag vom Grundstück erfolgt. Somit sparen Sie sich über 33.000€ an Kaufnebenkosten die Sie bei einem Normalen Hauskauf hätten.
Der angegebene Preis beinhaltet das Grundstück zu 190.000€ und die Baukosten zu 348.000€ = 538.000€ Optional erwerben kann man den Stellplatz u. Garage für zusätzliche 17.000 für beides zusammen € . Des Weiteren ist es auch möglich das Haus mit einem Keller zu erwerben dieser kostet 40.000€ Aufpreis. Für die erschließung zum Haus und das Pflastern zum Haus hinter werden insgesamt ca. 20.000€ an zusatzkosten auf Sie zukommen.
Gesamtkosten mit Erschließung: 558.000€ Gesamtkosten mit Erschließung und Garagen und Stellplätze: 565.000€ Gesamtkosten all inkl. Keller: 605.000€
Diese Doppelhaushälfte vereint Funktionalität mit einem ansprechenden Design und wartet darauf, von Ihnen persönlich zum Leben erweckt zu werden.
Merkmale
Bezug: 31.11.2026
322,5 m² Grundstück
Gäste-WC
Garten
Barrierefrei
Badezimmer: Badewanne, Bad mit Dusche, Bad mit Fenster
Grundrisse
Grundrisse
1 / 1
Realisiere Dein Projekt
Bausubstanz und Energie
Energieausweis
Ein Energieausweis ist für diesen Gebäudetyp nicht notwendig.
Zustand der ImmobilieErstbezug
Preisdetails
Kaufpreis
565000 €565.000 €
4.913,04 €/m²
Provision für Käufer
provisionsfrei
Geschätzte Gesamtkosten
596.075 €1
Kaufpreis
565.000 €
Kaufnebenkosten
31.075 €
2
Notarkosten (1,5%)
8.475 €
Grunderwerbsteuer (3,5%)
19.775 €
Grundbucheintrag (0,5%)
2.825 €
1Der angezeigte Wert ist eine automatisch berechnete Schätzung von immowelt.
2Bei den Angaben handelt es sich um ortsübliche Werte. Individuelle Kosten können abweichen.
Lage
Schwabmünchen (86830)
Der Anbieter hat die genaue Adresse nicht freigegeben
Entdecken Sie dieses charmante Anwesen in einer der begehrtesten Wohnlagen der Stadt. Die Immobilie befindet sich in einer ruhigen und dennoch zentralen Gegend, die sowohl die Ruhe des Vorstadtlebens als auch die Annehmlichkeiten des Stadtzentrums bietet.
Nur wenige Gehminuten entfernt finden Sie eine Vielzahl von Einkaufsmöglichkeiten, Restaurants und Cafés. Die öffentlichen Verkehrsmittel sind ebenfalls hervorragend angebunden, sodass Sie schnell und bequem in alle Teile der Stadt gelangen können.
Die Umgebung ist bekannt für ihre grünen Parks und Naherholungsgebiete, die zu Spaziergängen und Outdoor-Aktivitäten einladen. Schulen, Kindergärten und medizinische Einrichtungen sind in unmittelbarer Nähe, was diese Lage besonders für Familien attraktiv macht.
Darüber hinaus profitieren Sie von einer hervorragenden Anbindung an die wichtigsten Verkehrsadern, sodass Sie schnell und unkompliziert die Autobahn erreichen. Genießen Sie das Beste aus beiden Welten: Stadtnähe und doch in einer friedlichen und idyllischen Umgebung.
Weitere Informationen
Stichworte
Anzahl der Schlafzimmer: 3, Anzahl der Badezimmer: 1, Bundesland: Bayern