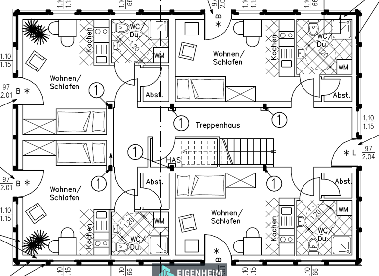
Eine mögliche Variante für Investoren: 2 Vollgeschosse mit insgesamt 8 Wohneinheiten jeweils 1 Zimmer Wohnungen a 22-24 qm und 40 qm Gartenanteil pro Wohnung vorgesehen
Denkbar als Monteur- oder Studentenwohnungen aber auch Seniorenwohnungen im EG durch die gegebene Barrierefreiheit
Kosten im Ăśberblick (Konditionen bis 31.03.2026 gĂĽltig):
- Erbpachtvertrag für Grundstück 766 monatlich - Ablösesumme für Baugenehmigung 10.000 - kann ggf. angepasst/verändert werden - Schlüsselfertiges Haus inkl. Bodenplatte 520.000 EUR
Bei Vermietung ist eine Rendite bis zu 10% denkbar
Ihre Vorteile: erfahrene Baufirma, patentiertes Baukastensystem mit individueller Grundrissplanung, Niedrigenergiehaus in massiver Bauweise und höchster Baugüte, 35 Jahre Garantie, zeitnahe Fertigstellung
Das Bauvorhaben ist individuell planbar - der Innenausbau kann in Eigenleistung erfolgen, was die Kosten erheblich minimiert.
Der Anbieter hat keine Informationen zu Energieverbrauch oder Zustand der Immobilie bereit gestellt.
Preisdetails
Kaufpreis
10000 €10.000 €
15,92 €/m²
Provision für Käufer
3,57 % inkl. gesetzlicher MwSt.
Geschätzte Gesamtkosten
10.357 €1
Kaufpreis
10.000 €
Kaufnebenkosten
357 €
2
Provision für Käufer (3,57%)
357 €
1Der angezeigte Wert ist eine automatisch berechnete Schätzung von immowelt.
2Bei den Angaben handelt es sich um ortsübliche Werte. Individuelle Kosten können abweichen.
Lage
Buch, Berlin (13125)
Der Anbieter hat die genaue Adresse nicht freigegeben
Das Bauvorhaben befindet sich im nördlichen Berliner Stadtteil Französisch Buchholz, der zum Bezirk Pankow gehört. Die Lage verbindet die Ruhe eines gewachsenen Wohngebiets mit der Nähe zur Berliner Innenstadt. Geprägt von Einfamilien- und Mehrfamilienhäusern sowie viel Grün, bietet die Umgebung ein angenehmes, familienfreundliches Wohnumfeld.
Die Infrastruktur ist sehr gut: Einkaufsmöglichkeiten für den täglichen Bedarf, Schulen, Kitas sowie medizinische Einrichtungen sind schnell erreichbar. Für Freizeit und Erholung laden Grünflächen, Parks und die nahe gelegenen Felder und Wiesen zu Spaziergängen oder sportlichen Aktivitäten ein.
Die Verkehrsanbindung ist ebenfalls attraktiv: Über die B109 sowie die A114 besteht eine schnelle Verbindung in die Berliner Innenstadt und ins Umland. Zudem sorgen Bus- und Straßenbahnlinien für eine gute Anbindung an den öffentlichen Nahverkehr.
Insgesamt bietet dieser Standort eine ideale Kombination aus ruhigem Wohnen im Grünen, familienfreundlicher Infrastruktur und urbaner Nähe, perfekt geeignet für ein modernes Mehrfamilienhausprojekt.
Weitere Informationen
Sonstiges
Weitere interessante Immobilien finden Sie unter www.eigenheim-invest.de
Suchprofil anlegen: Sie haben die passende Immobilie noch nicht gefunden? Dann tragen Sie sich als Suchkunde bei uns ein und erhalten frĂĽhzeitig neue Immobilienangebote: www.eigenheim-invest.de/immobiliensuche
Für Immobilieneingentümer: Sie möchten Ihre Immobilien verkaufen oder eine kostenlose Wertermittlung von einem Profi erhalten? Dann kontaktieren Sie uns direkt unter info@eigenheim-invest.de und vereinbaren Sie noch heute einen persönlichen Beratungstermin. Dieser Service ist für Sie völlig kostenfrei!