Version: 8.22.4Navigation überspringen
1.741 €
Immowelt logo

Ladenfläche zum Kauf
1740,80 Euro pro Quadratmeter

Großes Geschäftslokal direkt beim Meiselmarkt

Highlights: 

- Lage direkt am Meiselmarkt

- Loftartiger Grundriss

- Straßenseitiger Eingang

 

Objektbeschreibung

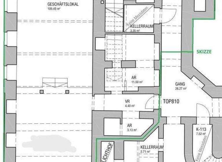
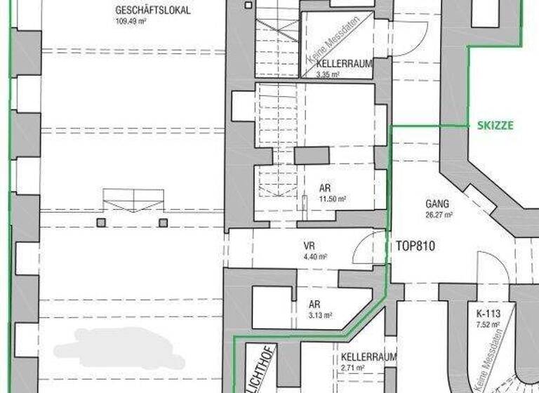
Zum Verkauf gelangt ein schöne Geschäftsfläche im Souterrain einer Eckliegenschaft am Meiselmarkts im 15. Wiener Gemeindebezirk. Das Geschäftslokal hat eine Größe von rund 172m², und verfügt über mehrere Fenster, die für eine gute Belichtung sorgen. Das Kaufobjekt besticht neben der tollen Lage, vor allem durch seinen gut belichteten, großen, loftartigen Raum mit Gewölbedecken und straßenseitigen Eingang. Bei einem Ausbau würden sich die hinteren Bereiche für den Einbau von Sanitäranlagen und als Lagerfläche anbieten. Das Geschäftslokal ist zusätzlich zum straßenseitigen Vordereingang auch über das Stiegenhaus bzw. mit Aufzug begehbar und befahrbar.

 

Verkehrsanbindung

Die Geschäftsfläche liegt direkt am Verkehrskreuz Johnstraße (U-Bahn Linie U3 / Straßenbahnlinie 49 / Buslinien 10A & 12A) und ist somit sehr gut an das öffentliche Verkehrsnetz angebunden.

 

 

 

Der Vermittler ist als Doppelmakler tätig.

Infrastruktur / Entfernungen

Gesundheit
Arzt <250m
Apotheke <250m
Klinik <500m
Krankenhaus <2.000m

Kinder & Schulen
Schule <250m
Kindergarten <250m
Universität <1.000m
Höhere Schule <1.250m

Nahversorgung
Supermarkt <250m
Bäckerei <250m
Einkaufszentrum <250m

Sonstige
Geldautomat <250m
Bank <250m
Post <250m
Polizei <250m

Verkehr
Bus <250m
U-Bahn <250m
Straßenbahn <250m
Bahnhof <250m
Autobahnanschluss <4.500m

Angaben Entfernung Luftlinie / Quelle: OpenStreetMap

Grundrisse

Grundrisse
1 / 1

Realisiere Dein Projekt

Bausubstanz und Energie

Heizwärmebedarf (HWB)

G

Gesamtenergieeffizienz (fGEE)

F
Immowelt logo

Preisdetails

Kaufpreis
299000 €
1.740,80 €/m²
Provision für Käufer
3% des Kaufpreises zzgl. 20% USt.

Lage

address-icon
MeiselstraßeWien,Rudolfsheim-Fünfhaus (1150)
Meiselmarkt, Johnstraße U

Weitere Informationen

Stichworte Nutzfläche: 171,76 m², Bundesland: Wien

Weitere Services

Lust auf eine Besichtigung?
Eine Frage zur Immobilie?
Nachricht hinzufügen
Mit der Nutzung der oben angegebenen Telefonnummer oder durch Klicken auf „Kontaktieren“ akzeptierst Du die Allgemeinen Nutzungsbedingungen, denen Du jederzeit widersprechen kannst. Weitere Informationen zum Datenschutz

Über den Anbieter

Marc-Aurel-Straße 6/6, 1010 WIEN
partner badge
Partnerschaft
Frau Cornelia PflugDein Kontakt
Online-ID: 2m7nf53
Referenznummer: OBGC20251029113537872a6d578b197
EDEX Immobilien GmbH
EDEX Immobilien GmbH
Bewertung: 5 von 5 Sternen
Nachricht hinzufügen
Mit der Nutzung der oben angegebenen Telefonnummer oder durch Klicken auf „Kontaktieren“ akzeptierst Du die Allgemeinen Nutzungsbedingungen, denen Du jederzeit widersprechen kannst. Weitere Informationen zum Datenschutz
Wie zufrieden bist du mit dieser Seite (nicht mit der Immobilie selbst)?