Version: 8.22.6Navigation ĂĽberspringen
Wohnungsverwaltung und Bau GmbH
340 €
2 Zimmer  â€˘  56,5 m²  â€˘  4. Geschoss  â€˘  frei ab sofort

Wohnung zur Miete
340 €
2 Zimmer  â€˘  56,5 m²  â€˘  4. Geschoss  â€˘  frei ab sofort

2-Raumwohnung

Objektbeschreibung Das schöne Wohngebiet Löbau-Süd 2 bietet Ihnen Ruhe und Gelassenheit. Großzügige Grünflächen laden zum Verweilen ein. Kein lauter Verkehr stört die Atmosphäre.
Die Gebäude wurden im Jahr 1991 errichtet. Die Wohnanlage befindet sich in einem gepflegten Zustand - Familienfreundlichkeit und Ruhe zeichnen das Wohngebiet aus.

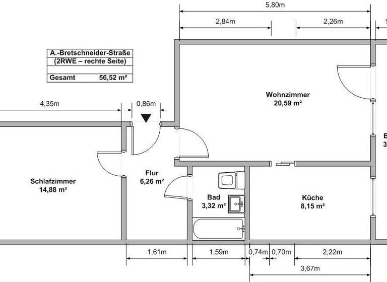
Raumaufteilung Wohnzimmer: 20,71 m²
Schlafzimmer: 15,15 m"
Flur: 5,39 m²
Küche: 8,33 m²
Bad mit WC: 3,43 m²
Balkon/Loggia: 3,51 m"
Gesamt: 56,52 m²

Merkmale

  • 4. Geschoss
  • Kelleranteil
  • DSL-Anschluss
  • Badewanne
  • Waschraum
  • Bodenbelag: Fliesen, Linoleum
  • Fenster: Kunststoff

Grundrisse

Grundrisse
1 / 1

Realisiere Dein Projekt

Bausubstanz und Energie

Energieausweis

C
  • Baujahr1991
  • HeizungsartZentralheizung
  • EnergieträgerFernwärme

Mietkosten

Warmmiete
491 €
Kaltmiete
6,02 €/m²
340 €
Nebenkosten
53 €
Heizkosten
98 €
Kaution
1020 €

Lage

address-icon
A.-Bretschneider-Straße 22, Löbau (02708)
Die am Stadtrand gelegene, ruhige Wohnanlage ist bevorzugt für Familien geeignet; Spielplatz, Einkaufsmöglichkeiten und Kindereinrichtungen befinden sich in der Nähe. Aber auch für Singles und junge Leute eine TOP-Adresse.
Sie profitieren von einer guten Busanbindung - verschiedene Bushaltestellen bedienen die Busse in alle Richtungen. Für PKW-Fahrer stehen ausreichend kostenlose Parkplätze vor dem Gebäude zur Verfügung.

Weitere Informationen

Besichtigungstermine Rufen Sie gleich an oder schreiben Sie uns eine Nachricht!

Ihre Ansprechpartnerin ist Frau Petzold
Telefon 03585 4785 15
E-Mail: info@wobauloebau.de

Wenn Sie mehr zu diesem Objekt erfahren möchten, senden Sie bitte Ihre Adressdaten, Telefonnummer und Ihre E- Mail Adresse, wir werden uns umgehend mit Ihnen in Verbindung setzen.

Wir bitten um Verständnis, dass nur Anfragen mit vollständiger Angabe Ihrer Daten bearbeitet werden können. (Kontaktformular) Stichworte Zustand: renoviert, saniert, gepflegt Sonstiges/Wohnen: Dachboden Versorgung: Städtische Wasserversorgung, Städtische Stromversorgung Serviceleistungen: Hausmeister

Weitere Services

Lust auf eine Besichtigung?
Eine Frage zur Immobilie?
Nachricht hinzufĂĽgen
Mit der Nutzung der oben angegebenen Telefonnummer oder durch Klicken auf „Kontaktieren“ akzeptierst Du die Allgemeinen Nutzungsbedingungen, denen Du jederzeit widersprechen kannst. Weitere Informationen zum Datenschutz

Ăśber den Anbieter

Sporgasse 1, 02708 Löbau
partner badge
Partnerschaft
Frau Kerstin PetzoldDein Kontakt
Online-ID: 2llrr5l
Referenznummer: 1417.024.
Wohnungsverwaltung und Bau GmbH
Wohnungsverwaltung und Bau GmbH
Nachricht hinzufĂĽgen
Mit der Nutzung der oben angegebenen Telefonnummer oder durch Klicken auf „Kontaktieren“ akzeptierst Du die Allgemeinen Nutzungsbedingungen, denen Du jederzeit widersprechen kannst. Weitere Informationen zum Datenschutz
Wie zufrieden bist du mit dieser Seite (nicht mit der Immobilie selbst)?