Exklusives Baugrundstück in Bestlage mit Blick ins Grüne. Provisionsfrei
Ohne Maklerprovision
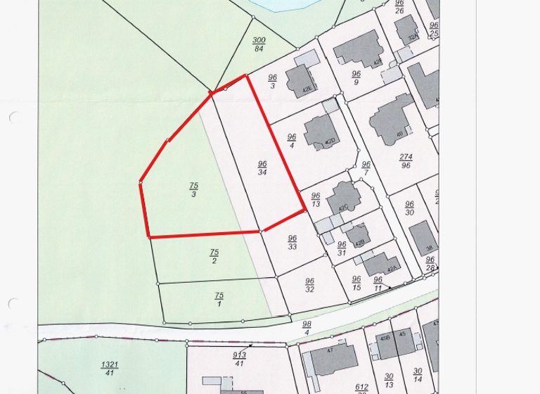
Ein Zuhause mit Lebensqualität: Dieses außergewöhnliche Grundstück mit einer Gesamtfläche von 3.439 m² bietet Ihnen den unverbaubaren Blick ins angrenzende Naturschutzgebiet - ein Ort, an dem Sie Ruhe, Natur und Großzügigkeit genießen können.
Die Fläche schafft Raum für Ihre Wohnideen: Ob ein großzügiger Bungalow, ein modernes Einfamilienhaus oder sogar eine repräsentative Villa - hier verwirklichen Sie Ihr individuelles Traumhaus mit großem Garten und viel Platz für die ganze Familie.
Die Bebauung richtet sich nach den Vorgaben des Bebauungsplans (WA / GRZ 0,3 / GFZ 0,4 / Z I).
Optional kann ein nahegelegenes Grundstück mit weiteren 12.620 m² zusätzlich erworben werden, das sich ideal als Pferdewiese oder für individuelle Freizeitnutzungen eignet, jedoch eingeschrenkt, da es sich um Naturschutzgebiet handelt.
Fazit
Ein einzigartiges Grundstück mit viel Raum für Selbstverwirklichung - ob Bungalow, Einfamilienhaus oder Villa. Genießen Sie den unverbaubaren Blick ins Grüne, einen großzügigen Garten und die Möglichkeit, Ihr Wohnkonzept in exklusiver Lage von Oldenburg umzusetzen.
Merkmale
3.439 m² Grundstück
Grundrisse
Grundrisse
1 / 1
Realisiere Dein Projekt
Bausubstanz und Energie
Möchtest du Details zum Energieverbrauch?
Preisdetails
Kaufpreis
790000 €790.000 €
229,72 €/m²
Provision für Käufer
provisionsfrei; Mit der Anfrage zum Objekt und Inanspruchnahme der Leistungen von Markus Berlik Immobilien kommt ein Maklervertrag zustande. Es fällt keine Maklerprovision für den Käufer an. Weitere Informationen siehe Provisionshinweis.
Geschätzte Gesamtkosten
790.000 €1
Kaufpreis
790.000 €
1Der angezeigte Wert ist eine automatisch berechnete Schätzung von immowelt.
Lage
Wechloy, Oldenburg (26129)
Der Anbieter hat die genaue Adresse nicht freigegeben
Mikrolage
Das Grundstück befindet sich in einer ruhigen und naturnahen Lage von Oldenburg. Eingebettet in ein herrliches Naturgebiet genießen Sie einen unverbaubaren Blick ins Grüne - eine seltene Kombination aus Idylle und Nähe zur Stadt. Trotz der naturnahen Umgebung sind sämtliche Einrichtungen des täglichen Bedarfs wie Einkaufsmöglichkeiten, Ärzte, Apotheken, Schulen und Kindergärten in kurzer Distanz erreichbar. Die Lage verbindet damit hohe Wohnqualität mit einer hervorragenden Anbindung an die städtische Infrastruktur.
Makrolage
Oldenburg zählt mit rund 175.000 Einwohnern zu den dynamisch wachsenden Oberzentren Nordwestdeutschlands. Die Stadt überzeugt durch ihre hohe Lebensqualität, eine stabile Kaufkraft und eine lebendige Mischung aus Familien, Berufstätigen und Studierenden. Die verkehrsgünstige Anbindung ist ausgezeichnet: Über die Autobahnen A28, A29 und A293 sowie das gut ausgebaute Netz öffentlicher Verkehrsmittel sind sowohl das Oldenburger Stadtzentrum als auch die umliegenden Regionen schnell erreichbar. Auch Bremen ist in rund 30 Minuten erreichbar. Das Baugrundstück bietet damit die seltene Möglichkeit, Wohnen im Grünen mit den Vorzügen einer zentralen und hervorragend erschlossenen Lage zu verbinden.
Weitere Informationen
Provisionshinweis
Mit der Anfrage zum Objekt und Inanspruchnahme der Leistungen von Markus Berlik Immobilien kommt ein Maklervertrag zustande. Es fällt keine Maklerprovision für den Käufer an. Alle Objektinformationen stammen vom Verkäufer, daher übernehmen wir keine Haftung für deren Richtigkeit. Änderungen, Zwischenverkauf oder -vermietung bleiben vorbehalten.
Sonstiges
Die bereits vorhandene Planung einer Villa mit Schwimmbad, kann übernommen werden.
Stichworte
Bundesland: Niedersachsen