Version: 8.26.0Navigation überspringen
Lohmeier + Partner GmbH
399.900 €
3 Zimmer  •  83 m²

Wohnung zum Kauf • provisionsfrei
399900 €
4.819 €/m²
3 Zimmer  •  83 m²

Neubau in ruhiger Wohnlage in BI-Gadderbaum mit Aussicht ins Naturschutzgebiet

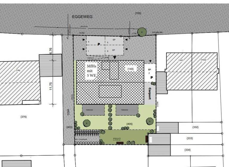
E x p o s é: Neubau-Eigentumswohnungen im exklusiven Mehrfamilienhaus Adresse: Eggeweg 140, 33613 Bielefeld Lage: Das Mehrfamilienhaus wird im Stadtbezirk Bielefeld-Gadderbaum errichtet. Der Eggeweg liegt oberhalb von Bethel und nah zur Brackwede. Nur wenige Meter verkehrt eine Buslinie. In Laufnähe befinden sich Einkaufsmöglichkeiten für den täglichen Bedarf ( Netto, Marktkauf, Apotheke und Ärzte ). Die Verkehrsanbindung mit der öffentlichen Straßenbahn ist nur wenige Minuten entfernt. Grundstück: Kaufgrundstück in der Größe 650 m² Objekt: Das Objekt wird in Massivbauweise und energetisch als Effizienzhaus 40 EE errichtet. Die Fassade erhält einen Wärmedämmputz. Die Fensterelemente werden mit 3-facher Isolierverglasung eingesetzt und das Dach mit Tonziegeln eingedeckt. Die Wohnungen werden mit einer Videosprechanlage und mit Designerplanken ausgestattet. Alle Wohnungen werden schlüsselfertig und endgereinigt angeboten. Bezugsfertig: Frühjahr 2027 Ausstattung: Exklusive Details und hochwertige Materialien zeichnen die gehobene Ausstattung aus. Im Wohnhaus allgemein: - Energieeffizienzhaus KfW Standard 40 EE - Photovoltaikanlage - Luftwärmepumpe - 3-fach Verglasung - Fahrstuhl mit Notrufanlage - Granitfliesen im Treppenhaus - Generalschließanlage - überdachter Fahrradstellplatz In den einzelnen Wohnungen: - Bad mit bodengleicher Dusche - hochwertige Markenausstattung von Grohe, Duravit, Kaldewei, Gira - Handtuchheizkörper - Wohnungstür mit 3-fach Verriegelung, Spion und als Klimaklasse III - Schließanlage - Gegensprechanlage mit Videobildfunktion - Fußbodenheizung - Maler- und Bodenbelagsarbeiten - stufenloser und rollstuhlgeeigneter Zugang

Merkmale

  • Personenaufzug
  • Badezimmer: Badewanne, Bad mit Dusche
  • Bad/WC getrennt, Gäste-WC
  • Terrasse
  • Außen-Stellplatz
  • Fenster: Kunststoff
Kaufpreise: Wohnung Aufteilung Wohnfläche Kaufpreis_ WE 1 – EG re. 3 ZKBWC, Terrasse 82,98 m² 399.900 € WE 2 – EG li. 3 ZKBWC, Terrasse verkauft WE 3 – OG re. 3 ZKBWC, Balkon 80,73 m² 394.900 € WE 4 – OG li. 3 ZKBWC, Balkon verkauft WE 5 – DG 4 ZKBWC, Loggia verkauft Nebenanlagen: pro Wohnung 1 Stellplatz für 5.000 € Carportwunsch Zuzahlung von 7.000 € Provisionen: keine zusätzliche Käufercourtage

Grundrisse

Grundrisse
1 / 3

Bausubstanz und Energie

Möchtest du Details zum Energieverbrauch?info_energy_calculation-icon
  • Baujahr2026
  • HaustypKfW 40
  • HeizungsartFußbodenheizung
  • EnergieträgerLuft-/Wasser-Wärmepumpe
MediumRectangleTop

Preisdetails

Kaufpreis
399900 €
4.819,23 €/m²
Preis pro Stellplatz
5000 €
Provision für Käufer
provisionsfrei
Geschätzte Gesamtkosten
433.893 €1
Kaufpreis
399.900 €
Notarkosten (1,5%)
5.999 €
Grunderwerbsteuer (6,5%)
25.994 €
Grundbucheintrag (0,5%)
2.000 €
1Der angezeigte Wert ist eine automatisch berechnete Schätzung von immowelt.
2Bei den Angaben handelt es sich um ortsübliche Werte. Individuelle Kosten können abweichen.

Lage

address-icon
GadderbaumBielefeld (33617)
Der Anbieter hat die genaue Adresse nicht freigegeben
Dieses MFH wird im Stadtbezirk Bielefeld - Gadderbaum errichtet. Der Eggeweg liegt oberhalb von Bethel und nah an dem Bielefelder Ortsteil Brackwede. Eine Buslinie verläuft in fußläufiger Entfernung. Einkaufsmöglichkeiten und persönliche Versorgung bietet das Umfeld ebenso an.

Weitere Informationen

Sonstiges Info: Anzahl Etagen: 3

Weitere Services

Lust auf eine Besichtigung?
Eine Frage zur Immobilie?
Nachricht hinzufügen
Mit der Nutzung der oben angegebenen Telefonnummer oder durch Klicken auf „Kontaktieren“ akzeptierst Du die Allgemeinen Nutzungsbedingungen, denen Du jederzeit widersprechen kannst. Weitere Informationen zum Datenschutz

Über den Anbieter

Elpke 115, 33605 Bielefeld
partner badge
Partnerschaft
Herr Mirko Petring
Herr Mirko PetringDein Kontakt
Online-ID: 25R5LWYKJSEW
MediumRectangleTop
Wie zufrieden bist du mit dieser Seite (nicht mit der Immobilie selbst)?