

Penthouse zum Kauf - Erstbezug • provisionsfrei604600 €5.700 €/m²3 Zimmer • 106,1 m² • 6. Geschoss
604600 €
5.700 €/m²
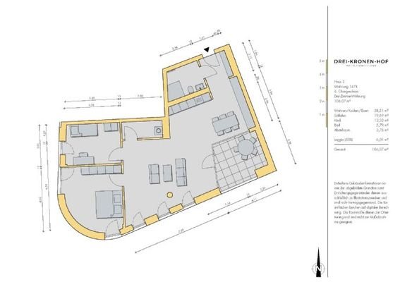
3 Zimmer • 106,1 m² • 6. Geschoss
WHG 1474 - Penthouse-Wohnung, barrierefrei
Der Anbieter hat keine weitere Beschreibung hinterlegt. Brauchst du weitere Informationen?
Merkmale
- Bezug: 2024
- 6. Geschoss
- Personenaufzug
- kontrollierte Be- und EntlĂĽftungsanlage
- Badewanne
- Bodenbelag: Parkett
- Loggia
Realisiere Dein Projekt
Bausubstanz und Energie
Energieausweis
B
- Baujahr2023
- Zustand der ImmobilieErstbezug
- HaustypKfW 55
- HeizungsartFuĂźbodenheizung
- EnergieträgerFernwärme
Preisdetails
Kaufpreis
604600 €
5.700,01 €/m²
Provision für Käufer
provisionsfrei
Geschätzte Gesamtkosten
646.922 €1
Kaufpreis
604.600 €
Kaufnebenkosten
42.322 €
2Notarkosten (1,5%)
9.069 €
Grunderwerbsteuer (5%)
30.230 €
Grundbucheintrag (0,5%)
3.023 €
1Der angezeigte Wert ist eine automatisch berechnete Schätzung von immowelt.
2Bei den Angaben handelt es sich um ortsübliche Werte. Individuelle Kosten können abweichen.
Lage

Tuttlingen (78532)
Der Anbieter hat die genaue Adresse nicht freigegeben
Weitere Services
Lust auf eine Besichtigung?
Eine Frage zur Immobilie?
Ăśber den Anbieter
Die Wohnbau Tuttlinger Wohnbau GmbHMaklerbĂĽro
In Wöhrden 2-4, 78532 Tuttlingen
Partnerschaft
Frau Tina AndricDein Kontakt
Online-ID: 29dnv55

Die Wohnbau Tuttlinger Wohnbau GmbH
Bewertung: 5 von 5 Sternen
Wie zufrieden bist du mit dieser Seite (nicht mit der Immobilie selbst)?

