Gastronomischer Glanz in Linkenheim & 3 Zimmerwohnung im OG
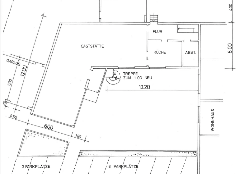
Herzlich willkommen zu einem einzigartigen gastronomischen Erlebnis in dieser exquisiten Gewerbeimmobilie! Diese charmante Location erstreckt sich über eine großzügige Fläche von etwa 160 Quadratmetern und bietet Platz für 80 Gäste im gemütlichen Innenbereich. Die mediterrane Atmosphäre zieht sich durch das gesamte Ambiente und schafft eine warme und einladende Atmosphäre.
Die Gastronomie ist nicht nur lokal, sondern über die Region hinaus bekannt und lockt Feinschmecker mit ihrer vorzüglichen italienisch-mediterranen Küche an. Ein kulinarisches Erlebnis erwartet die Gäste, die von den geschmackvoll eingerichteten Räumlichkeiten und dem erstklassigen Service begeistert sein werden.
Besonders im Sommer lädt die großzügige Terrasse mit beeindruckenden 130 Sitzplätzen dazu ein, unter freiem Himmel zu dinieren und das mediterrane Flair zu genießen. Ein wahrer Genuss für alle Sinne! Der Außenbereich des Objekts besticht nicht nur durch seine einladende Terrasse, sondern bietet auch praktische Annehmlichkeiten wie 11 Kundenparkplätze sowie eine Doppelgarage und eine Einzelgarage. Kunden finden hier bequem Platz für ihre Fahrzeuge, um das gastronomische Erlebnis stressfrei zu beginnen.
Das gesamte Gebäude ist voll unterkellert, wobei sich im Untergeschoss die gepflegten WC-Anlagen und eine großzügige Lagerfläche befinden. Dies ermöglicht eine effiziente Nutzung des Raumangebots und sorgt für einen reibungslosen Ablauf im Gastronomiebetrieb.
Zusätzlich zum gastronomischen Angebot beherbergt das Obergeschoss eine attraktive 3-Zimmerwohnung mit einer Fläche von circa 87 Quadratmetern. Diese Wohnmöglichkeit rundet das Gesamtangebot perfekt ab und bietet die Möglichkeit, Arbeit und Wohnen harmonisch zu verbinden.
Insgesamt präsentiert sich diese Gewerbeimmobilie als eine einzigartige Gelegenheit für Unternehmer, die ihre gastronomischen Visionen in einem etablierten und erfolgreichen Umfeld umsetzen möchten. Ein Ort, der nicht nur kulinarisch, sondern auch architektonisch und atmosphärisch überzeugt. Hier steht einem erfolgreichen Gastronomiebetrieb nichts im Wege!
Merkmale
Bezug: Sofort
11 Stellplätze: 11 Garagen
Bodenbelag: Fliesen
- Inventar inkludiert im Kaufpreis - Bekannt in der gesamten Region - Neue Küche in der Coronaphase - Nagelneue Kaffeemschine - 9 Stellplätze vor der Türe - Doppelgarage - 3 Zimmerwohnung im Obergeschoss - Vollunterkellert - Große Lagerflächen im UG - Klimatisiert
Grundrisse
Grundrisse
1 / 2
Realisiere Dein Projekt
Bausubstanz und Energie
Der Anbieter hat keine Informationen zum Energieverbrauch bereit gestellt.
Baujahr1968
Zustand der ImmobilieGepflegt
EnergieträgerÖl
Preisdetails
Preis auf Anfrage
Provision für Käufer
2,38%
Weitere Preisinformationen
11 Garagenstellplätze
Lage
Linkenheim, Linkenheim-Hochstetten (76351)
Der Anbieter hat die genaue Adresse nicht freigegeben
Diese bezaubernde Gewerbeimmobilie befindet sich inmitten der idyllischen Gemeinde Linkenheim-Hochstetten im charmanten Ortsteil Linkenheim. Die Lage bietet eine perfekte Symbiose aus ländlichem Flair und einer guten Anbindung an die umliegenden Regionen.
Linkenheim-Hochstetten selbst zeichnet sich durch eine freundliche und lebendige Gemeinschaft aus. Der Ortsteil Linkenheim bezaubert mit seinen historischen Gebäuden und gepflegten Grünflächen. Die Gewerbeimmobilie ist somit nicht nur ein kulinarischer Anziehungspunkt, sondern fügt sich harmonisch in das charmante Ortsbild ein.
Die Lagevorteile erstrecken sich über die gute Erreichbarkeit für Gäste aus den umliegenden Städten und Gemeinden. Die Autobahnanschlüsse in der Nähe ermöglichen eine unkomplizierte Anreise, während die umgebende Natur und ländliche Umgebung eine angenehme Atmosphäre schaffen.
Der Ortsteil Linkenheim präsentiert sich als lebendiger und vielseitiger Standort, der eine hohe Lebensqualität bietet. Die lokale Infrastruktur, einschließlich Geschäften und Freizeiteinrichtungen, macht die Gemeinde zu einem attraktiven Ziel für Einheimische und Besucher gleichermaßen.
Die Gewerbeimmobilie selbst profitiert von einer zentralen Lage im Ortsteil, was eine gute Sichtbarkeit und Erreichbarkeit für potenzielle Gäste gewährleistet. Die Umgebung lädt dazu ein, nach einem kulinarischen Genuss noch einen Spaziergang durch die malerischen Straßen von Linkenheim zu machen oder die umliegende Natur zu erkunden.
Insgesamt präsentiert sich die Lage dieser Gewerbeimmobilie als perfekte Verbindung zwischen traditionellem Charme, moderner Annehmlichkeit und einer attraktiven Umgebung. Ein Ort, an dem Gäste nicht nur die exquisite Gastronomie, sondern auch das Flair der Gemeinde Linkenheim-Hochstetten in vollen Zügen genießen können.
Weitere Informationen
Energiepass
Energieausweis wird bei Besichtigung vorgelegt.
Stichworte
Garage vorhanden, Stellplatz vorhanden, Gesamtfläche: 430,00 m²