
Schönrich Immobilien GmbH
Herr Ihr Immobilienteam
+49 ···
Nr. anzeigenPreise & Kosten
Provision für Käufer
3,57 % des Kaufpreises inkl. MwSt. inkl. MwSt.
Mit Unterzeichnung des notariellen Kaufvertrages ist eine Maklerprovision in Höhe von 3,57 % inklusive gesetzlich gültiger MwSt. Weitere Informationen siehe Provisionshinweis.
Lage
Dieses schöne freistehende Einfamilienhaus befindet sich in einer ruhigen Straße in Kalbach-Riedberg (OT Kalbach) in naher Feldrandlage (ca. 100 m) und wird Sie auf Anhieb begeistern.
In dieser Lage können Ihre Kinder noch sorgenlos in der Natur spielen und der nächste Kindergarten liegt fußläufig entfernt. Kurzfristig zu...
Das Haus
Kategorie
Einfamilienhaus
Baujahr
1920
Energie & Heizung
Warum sehe ich diese Anzeige? – Du siehst diese Anzeige basierend auf Ihrer Navigation auf unserer Website und den Suchkriterien, die du verwendet hast.
Weitere Energiedaten
Haustyp
Massivhaus
Energieträger
Gas
Heizungsart
Fußbodenheizung, Zentralheizung
Details
Objektbeschreibung
Wohnen im modernen und sanierten freistehenden Einfamilienhaus.
Das Wohnhaus bietet ein sehr angenehmes Raumklima aufgrund des massiven Mauerwerks. Zudem sorgen der angenehme und charmante Charakter dieses modernisierten Wohnhauses aus der Jahrhundertwende für ein schönes Wohngefühl. Das freistehende Wohnhaus bietet sehr...
Ausstattung
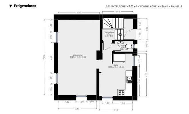
Raumaufteilung:
Erdgeschoss:
- Einbauküche mit allen modernen technischen Geräten
- schöner gemütlicher Wohnbereich
- Gäste-WC mit Tageslicht
- schwarzer Schieferboden
- Innenverkabelung für die Wand- TV bis 85° Zoll
1. Obergeschoss:
- 2 helle und freundliche Kinderzimmer
- Tageslichtbad...
Preisinformation
2 Stellplätze
1 Garagenstellplatz
Weitere Informationen
Provisionshinweis
3,57 % des Kaufpreises inkl. MwSt. inkl. MwSt.
Mit Unterzeichnung des notariellen Kaufvertrages ist eine Maklerprovision in Höhe von 3,57 % inklusive gesetzlich gültiger MwSt., bezogen auf den vereinbarten Kaufpreis, verdient und fällig und vom Käufer an die Firma Schönrich Immobilien GmbH zu...
Anbieter der Immobilie
Schönrich Immobilien GmbH
Am Rosengarten 12, 63674 Altenstadt
Online-ID: 29egm5b
Referenznummer: 09040M
Finde Angebote wie dieses
Hier geht es zu unserem Impressum, den Allgemeinen Geschäftsbedingungen, den Hinweisen zum Datenschutz und nutzungsbasierter Online-Werbung.