

Andrea Klein Immobilien
Frau Andrea Klein - Zweigstelle Ostbayern
099 ···
Nr. anzeigenPreise & Kosten
Provision für Käufer
provisionsfrei
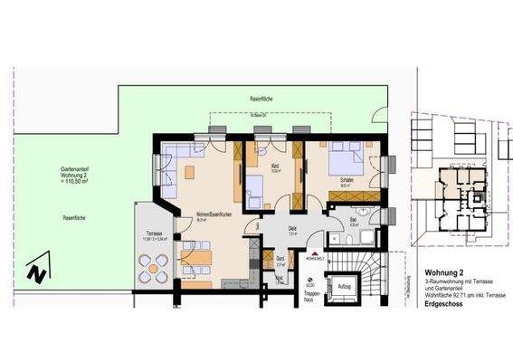
Die Wohnung
Wohnungslage
Erdgeschoss
Bezug
Mitte 2026
Wohnanlage
Energie & Heizung
Warum sehe ich diese Anzeige? – Du siehst diese Anzeige basierend auf Ihrer Navigation auf unserer Website und den Suchkriterien, die du verwendet hast.
Weitere Energiedaten
Haustyp
KfW 40
Details
Objektbeschreibung
Hier im schönen staatlich anerkannten Erholungsort Drachselsried im Bayerischen Wald entsteht in einer zentrums- und naturnahen Wohnlage ein modernes, klimafreundliches, in leichter Hanglage nach Südwesten hin ausgerichtetes 7-Parteien-Wohnhaus.
Mit der Fertigstellung ist nach aktuellem Stand Mitte 2026 zu...
Weitere Informationen
Sonstiges:
Wir handeln im Alleinauftrag.
Die Vermittlung erfolgt käuferprovisionsfrei.
Bauträger:
Bergbauer Projektbau GmbH
Schönbacher Straße 7
94256 Drachselsried
Anbieter der Immobilie
Andrea Klein Immobilien
Ludwigstraße 8, 80539 München

Online-ID: 29j6a5u
Referenznummer: 1128
Finde Angebote wie dieses
Hier geht es zu unserem Impressum, den Allgemeinen Geschäftsbedingungen, den Hinweisen zum Datenschutz und nutzungsbasierter Online-Werbung.