
TOM Krauss Immo GmbH
Frau Valentina Krauss
004 ···
Nr. anzeigenDieses Angebot ist Teil des Neubauprojekts
Stadthaus Miller
Preise & Kosten
Provision für Käufer
3% + 20% Ust.
Lage
Lage/Infrastruktur:
.Nähe Innenstadt
.Nähe Mariahilferstrasse, Westbahnhof, Raimundtheater
.Ideale Nahversorgung (Supermärkte, Drogerien, Bäckerei, Apotheke)
.Hervorragende öffentliche Anbindung
.U-Bahn Stationen der Linien 3 und 6 (Westbahnhof und Zieglergasse)
.Straßenbahnlinien: 5, 6, 9, 18, 52...
Die Wohnung
Wohnungslage
5. Geschoss (Dachgeschoss)
Bezug
sofort
Wohnanlage
Das Neubauprojekt
Energie & Heizung
Warum sehe ich diese Anzeige? – Du siehst diese Anzeige basierend auf Ihrer Navigation auf unserer Website und den Suchkriterien, die du verwendet hast.
Heizwärmebedarf (HWB)
29,50 kWh/(m²·a)
Gesamtenergieeffizienz (fGEE)
0,76
Weitere Energiedaten
Energieträger
Gas
Heizungsart
Fußbodenheizung
Details
Objektbeschreibung
Kurzbeschreibung
Ruhig und urban Wohnen im 6. Bezirk. Das moderne Wohnhaus befindet sich unweit der Mariahilferstrasse in einer ruhigen Seitengasse. Aufgrund der Nähe zur Innenstadt sind die Wohnungen zur Eigennutzung, als auch als Anlageobjekt attraktiv.
Objekt
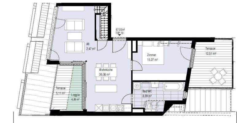
Die Wohnung liegt im 2DG des Hauses und besteht aus...
Ausstattung
Ausstattung:
.Großteils Loggien, Balkons oder Terrassen
.5 Autoabstellplätze im Innenhof (optional)
.Eigene Kellerabteile
.Fußbodenheizung über Gaszentralheizung in Kombination mit thermischer Solaranlage
.Überwiegend bodentiefe Fenster mit Vorbereitung für elektrischen Sonnenschutz außen
.Klimavorbereitung...
Weitere Informationen
Sonstiges
Sämtliche Angaben sind ohne Gewähr und beruhen auf Informationen des Auftraggebers.
Bitte haben Sie Verständnis, dass wir nur Anfragen mit vollständiger Anschrift und Telefonnummer beantworten können! Wir weisen auf ein wirtschaftliches Naheverhältnis zum Auftraggeber und auf unsere Tätigkeit als Doppelmakler...
Anbieter der Immobilie
TOM Krauss Immo GmbH
Mexikoplatz 26/3, 1020 WIEN
Online-ID: 29l7e5j
Referenznummer: TKI-00358_19
Finde Angebote wie dieses
Günstige Immobilienfinanzierung einfach online berechnen
Persönliches Angebot berechnenWarum sehe ich diese Werbung? – Du siehst diese Werbung basierend auf Deiner Navigation auf unserer Website und der von Dir verwendeten Suchkriterien.
Diese Werbung wird bezahlt von durchblicker
Werbung melden
Hier geht es zu unserem Impressum, den Allgemeinen Geschäftsbedingungen, den Hinweisen zum Datenschutz und nutzungsbasierter Online-Werbung.