

Città Ideale & Prestige S.r.l.
Herr Fabrizio Paganelli
+39 ···
Nr. anzeigenPreise & Kosten
Provision für Käufer
Bitte beachte, das Angebot beinhaltet bei Vertragsabschluss die Zahlung einer Provision. Weitere Informationen erhältst Du vom Anbieter.
Das Haus
Kategorie
Villa
Geschosse
4 Geschosse
Derzeitige Nutzung
frei
Energie & Heizung
Warum sehe ich diese Anzeige? – Du siehst diese Anzeige basierend auf Ihrer Navigation auf unserer Website und den Suchkriterien, die du verwendet hast.
Energieausweistyp
Verbrauchsausweis
Gebäudetyp
Wohngebäude
Effizienzklasse
A+
Endenergieverbrauch
25,00 kWh/(m²·a)
Weitere Energiedaten
Energieträger
Gas, Solar
Heizungsart
Fußbodenheizung
Details
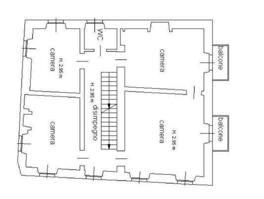
Objektbeschreibung
Auf einer der berühmtesten Inseln des Lago Maggiore, die Teil des malerischen Borromäischen Golfs ist, verkaufen wir die historische Villa Pace. Sie wurde entkernt, modernisiert und renoviert wobei nur noch vergleichsweise wenig Umfänge zu tun sind. Die Materialien für Bäder, Böden und Innengestaltung können noch frei gewählt...
Weitere Informationen
Stichworte
Versorgung: Städtische Wasserversorgung, Städtische Stromversorgung
Anbieter der Immobilie
Città Ideale & Prestige S.r.l.
Corso San Babila, 20122 Milano

Online-ID: 29lm45r
Referenznummer: VA.0769-P34
Finde Angebote wie dieses
Hier geht es zu unserem Impressum, den Allgemeinen Geschäftsbedingungen, den Hinweisen zum Datenschutz und nutzungsbasierter Online-Werbung.