
RUHR REAL GmbH
Herr Samuel Kruse
+49 ···
Nr. anzeigenPreise & Kosten
Provision für Mieter
provisionsfrei
Warum sehe ich diese Anzeige? – Du siehst diese Anzeige basierend auf Ihrer Navigation auf unserer Website und den Suchkriterien, die du verwendet hast.
Lage
Das Objekt befindet sich in einer der gefragtesten Bürolagen von Essen. Im Essener Stadtteil Rüttenscheid sitzen Anwälte, Wirtschaftsprüfer, Banken und Ärzte. Rüttenscheid ist auch einer der beliebtesten Essener Stadtteile. Attraktive Boutiquen, Restaurants, Cafés verleihen der "Rü"ihre besondere Atmosphäre. Darüber hinaus...
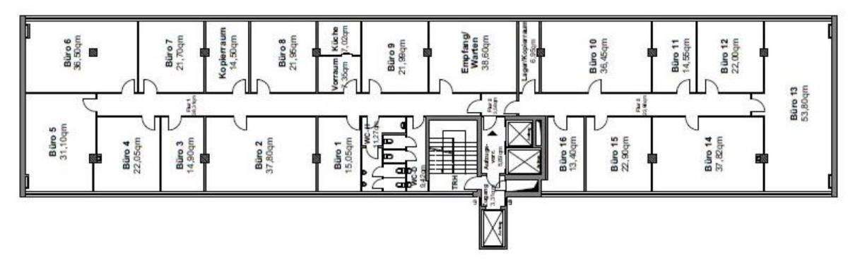
Büro-/Praxisfläche
Kategorie
Bürofläche
Baujahr
1972
Bezug
sofort
Derzeitige Nutzung
frei
Energie & Heizung
Warum sehe ich diese Anzeige? – Du siehst diese Anzeige basierend auf Ihrer Navigation auf unserer Website und den Suchkriterien, die du verwendet hast.
Weitere Energiedaten
Energieträger
Fernwärme
Details
Objektbeschreibung
Bei der attraktiven Immobilie handelt es sich um ein Büro- und Geschäftshaus in bester Bürolage von Essen-Rüttenscheid. Die vakanten Büroflächen sind über das Treppenhaus sowie über einen Personenaufzug und einen Liegendaufzug zugänglich. Das Objekt bietet einen repräsentativen Eingangsbereich, dieser bietet jedem Nutzer die...
Ausstattung
. Sonnenschutz: außenliegend, elektrisch
. Bodenbelag: Teppichboden
. Verkabelung: CAT-5 vom Vormieter
. Kabelführung: Bodentanks
. Beleuchtung: Deckenleuchten
. Teeküche: voll ausgestattet
. Aufzug: Personenaufzug und Liegendaufzug (z.B. für Patientenanlieferung)
. Barrierearm: ebenerdiger...
Preisinformation
Nettokaltmiete: 11,90 EUR
Weitere Informationen
Sonstiges
Es gelten ausschließlich unsere AGB (www.ruhr-real.de/agb). Wir möchten Sie darauf hinweisen, dass die Angaben ausschließlich auf den uns vom Eigentümer übermittelten Unterlagen und Informationen basieren. Für Richtigkeit und Vollständigkeit übernehmen wir keine Gewähr. Zwischenvermietung...
Anbieter der Immobilie

RUHR REAL GmbH
Holsterhauser Platz 2, 45147 Essen
Online-ID: 29nnd5q
Referenznummer: 315/E2
Finde Angebote wie dieses
Hier geht es zu unserem Impressum, den Allgemeinen Geschäftsbedingungen, den Hinweisen zum Datenschutz und nutzungsbasierter Online-Werbung.