

Jones Lang LaSalle SE - Industrial & Logistics Agency West
Herr Hauke Haupt
+49 ···
Nr. anzeigenPreise & Kosten
Provision für Mieter
provisionspflichtig für den Mieter/Käufer
Warum sehe ich diese Anzeige? – Du siehst diese Anzeige basierend auf Ihrer Navigation auf unserer Website und den Suchkriterien, die du verwendet hast.
Lage
Der Gelsenkirchener Stadtteil Bismarck ist einer der östlichsten Stadtteile Gelsenkirchens und ist dem Stadtbezirk Gelsenkirchen Mitte angehörig. Der einst von Zechen geprägte Stadtteil bietet alles was einen sympathischen, urbanen und zentral gelegenen Standort ausgezeichnet und eignet sich, durch seine großen...
Die Industriefläche
Kategorie
Lagerhalle
Bezug
Sofort
Energie & Heizung
Warum sehe ich diese Anzeige? – Du siehst diese Anzeige basierend auf Ihrer Navigation auf unserer Website und den Suchkriterien, die du verwendet hast.
Wärme
Strom
Energieausweistyp
Verbrauchsausweis
Gebäudetyp
Nicht-Wohngebäude
Gültigkeit
11.07.2025 bis 07.12.2035
Endenergieverbrauch (Wärme)
110,00 kWh/(m²·a)
Endenergieverbrauch (Strom)
80,00 kWh/(m²·a)
Details
Objektbeschreibung
Der Gewerbepark verfügt über eine direkte Auffahrt auf die Autobahn A42 und bietet neben flexibel nutzbaren Gewerbeeinheiten ausreichend Stellplätze.
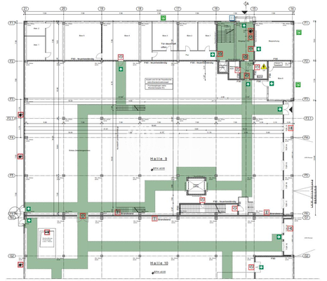
In den Hallen 9+10 können die Flächen im EG und OG separat angemietet werden.
Die Betriebszeiten sind Montag - Samstag von 6:00 - 22:00 Uhr
Ausstattung
Halle 1, 3+4
- 4 ebenerdige Andienungen
- Hallenhöhe 5,50 m Unterkante Binder
- Halle 1 Bodentraglast ca. 23 t/m²
- Halle 3+4 Bodentraglast ca. 25 t/m²
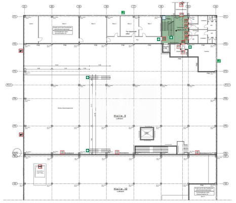
Halle 9
- 4 Rampenandienungen
- 2 ebenerdige Andienungen
- Hallenhöhe EG ca. 6,00 m Unterkante Binder
- Hallenhöhe OG ca. 8,75 m Unterkante...
Preisinformation
140 Stellplätze, Miete je: 30,00 EUR
Weitere Informationen
Stichworte
Lagerfläche: 10.554,00 m², Gesamtfläche: 11.690,00 m², Hallenhöhe: 2,75 m
Sonstiges: EDV-Verkabelung
Anbieter der Immobilie
Jones Lang LaSalle SE - Industrial & Logistics Agency West
Dreischeibenhaus 1, 40211 Düsseldorf

Online-ID: 29ras5y
Referenznummer: 7@of54529@14@0
Finde Angebote wie dieses
Hier geht es zu unserem Impressum, den Allgemeinen Geschäftsbedingungen, den Hinweisen zum Datenschutz und nutzungsbasierter Online-Werbung.