
STEINFEGER IMMOBILIEN
060 ···
Nr. anzeigenPreise & Kosten
Provision für Käufer
Bitte beachte, das Angebot kann bei Vertragsabschluss die Zahlung einer Provision beinhalten. Weitere Informationen erhältst Du vom Anbieter.
Lage
Diese Doppelhaushälfte wird im Florstädter Stadtteil Stammheim erbaut. Die Gemeinde Florstadt ist über Busverbindung an Friedberg angeschlossen. Von Friedberg gibt es alle 20 min eine S- Bahn Verbindung nach Frankfurt. Einkaufsmöglichkeiten für den täglichen Bedarf sind am Ort umfangreich verfügbar, ebenso Kindergärten und...
Das Haus
Kategorie
Doppelhaushälfte
Baujahr
2024
Energie & Heizung
Warum sehe ich diese Anzeige? – Du siehst diese Anzeige basierend auf Ihrer Navigation auf unserer Website und den Suchkriterien, die du verwendet hast.
Energieausweis: für diesen Gebäudetyp nicht notwendig
Details
Objektbeschreibung
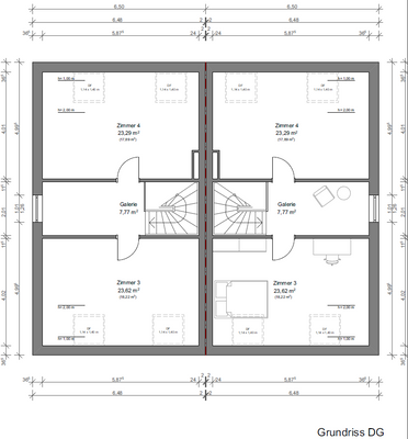
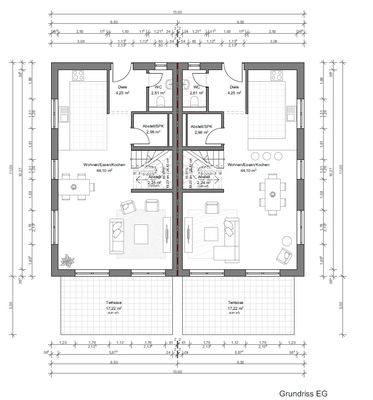
In gewachsener Wohnlage von Stammheim entsteht diese Doppelhaushälfte mit 2 Vollgeschossen und einem Dachgeschoss.
EG: Wohn/-Essbereich, Küche Gäste-WC, Abestellraum, Hausanschlussraum
OG: 2 Schlafzimmer, Vollbad, Hauswirtschaftsraum
DG: 2 Zimmer, Galerie
Diese Immobilie wird für Sie "schlüsselfertig"...
Ausstattung
Massivbauweise in Ytong Poren Beton36,5 cm
Mehrsparten Hausanschluss
Innenwände ebenfalls in Massivbauweise
Dachüberstände 30 cm bei Traufe und Giebel
Zimmermannsdach
Dacheindeckung Braas Harzer Pfanne Big
Beschichtete CPL Röhrenspan Innentüren
Dreifachverglaste Fensterelemente
Innenfensterbänke...
Weitere Informationen
Stichworte
Anzahl der Schlafzimmer: 4, Anzahl der Badezimmer: 1, Anzahl Terrassen: 1, 3 Etagen
Anbieter der Immobilie
Online-ID: 29rhs5y
Referenznummer: 8014#eaLxYh
Finde Angebote wie dieses
Hier geht es zu unserem Impressum, den Allgemeinen Geschäftsbedingungen, den Hinweisen zum Datenschutz und nutzungsbasierter Online-Werbung.