Version: 8.22.4Navigation ĂĽberspringen
Preis auf Anfrage
614 m² Bürofläche
Immowelt logo

BĂĽro zum Kauf
614 m² Bürofläche

Hochwertiges BĂĽro im 1.OG in TOP Frequenzlage direkt an der Autobahnabfahrt Vorchdorf!

Modernes BĂĽro in Vorchdorf zu Verkaufen!

Die Immobilie befindet sich direkt am Kreisverkehr bei der Autobahnabfahrt Vorchdorf und bietet daher eine optimale Verkehrsanbindung und Sichtbarkeit.
Die großzügige Bürofläche umfasst insgesamt 614m² im 1. OG eines modernen Gebäudes in Vorchdorf.

Eigenschaften:

* Baujahr: 2008, mit einem Zubau auf der Gebäuderückseite im Jahr 2013
* Sehr niedrige Betriebskosten
* Beheizung mittels Wärmepumpe, klimatisiert
* Barrierefrei mit Lift

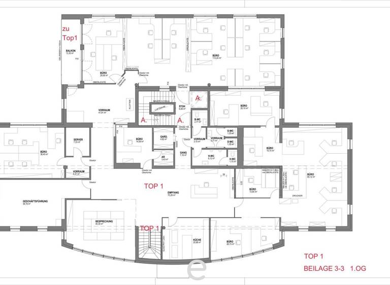
Raumaufteilung 1. Obergeschoss (200m² + 400m²):

* neun BĂĽros
* ein Besprechungsräume
* WCs
* Abstellraum
* KĂĽche
* Balkon mit 13,33m²

Im Keller gibt es die Möglichkeit weitere Räume mit Laderampe anzumieten.

Die Betriebskosten betragen € 2,50 /m² zuzĂĽglich Ust (inkl. Heizkosten!)

FĂĽr weitere Informationen und Besichtigungen kontaktieren Sie bitte Irina Scharinger unter der Telefonnummer 0676 6777722.
Bei Internetanfragen ist die Angabe von vollständigem Namen, Adresse und Telefonnummer erforderlich (Nachweispflicht gegenüber dem Verkäufer).

Wir freuen uns darauf, Ihnen dieses moderne Büro näher vorzustellen!

 

 

 

 

Noch nichts gefunden? Wir informieren Sie ĂĽber geeignete Immobilienangebote noch vor allen anderen.
Legen Sie jetzt Ihren individuellen Suchagenten unter folgendem Link an. Wir schicken Ihnen passende Immobilien exklusiv vorab zu.
Suchagent anlegen [https://eurea-real-estates.service.immo/registrieren/de] - https://eurea-real-estates.service.immo/registrieren/de

Wir weisen darauf hin, dass zwischen dem Vermittler und dem zu vermittelnden Dritten ein familiäres oder wirtschaftliches Naheverhältnis besteht.

Der Vermittler ist als Doppelmakler tätig.

Infrastruktur / Entfernungen

Gesundheit
Arzt <775m
Apotheke <300m
Klinik <7.975m

Kinder & Schulen
Schule <575m
Kindergarten <600m

Nahversorgung
Supermarkt <250m
Bäckerei <600m
Einkaufszentrum <9.025m

Sonstige
Bank <800m
Geldautomat <800m
Post <1.125m
Polizei <7.925m

Verkehr
Bus <500m
Bahnhof <250m
Autobahnanschluss <375m
Flughafen <7.425m

Angaben Entfernung Luftlinie / Quelle: OpenStreetMap

Merkmale

  • Bezug: sofort
  • 18 Stellplätze: 18 AuĂźen-Stellplätze
  • Gäste-WC
  • Barrierefrei
  • voll erschlossen

Grundrisse

Grundrisse
1 / 1

Realisiere Dein Projekt

Bausubstanz und Energie

Der Anbieter hat keine Informationen zum Energieverbrauch bereit gestellt.
  • Baujahr2008
  • Zustand der ImmobilieNeubau, Gepflegt
Immowelt logo

Preisdetails

Provision für Käufer
Bitte beachte, das Angebot kann bei Vertragsabschluss die Zahlung einer Provision beinhalten. Weitere Informationen erhältst Du vom Anbieter.
Weitere Preisinformationen
18 Stellplätze

Lage

address-icon
Lambacherstraße 40, Vorchdorf (4655)
Die Immobilie befindet sich direkt am Kreisverkehr bei der Autobahnabfahrt Vorchdorf und bietet daher eine optimale Verkehrsanbindung und Sichtbarkeit.
Vorchdorf ist eine Gemeinde im Bezirk Gmunden in Oberösterreich und liegt zwischen Linz und Salzburg. Die Immobilie liegt in zentraler Lage in der Nähe verschiedener Einrichtungen wie Arztpraxen, Apotheken, Schulen, Kindergärten, Supermärkten, Bäckereien, Banken und Geldautomaten. Auch öffentliche Verkehrsmittel wie Busse und der Bahnhof sind in der Nähe.

Weitere Informationen

Stichworte Stellplatz vorhanden, Lagerfläche: 32,90 m², Nutzfläche: 614,00 m², Kellerfläche: 248,00 m², Bundesland: Oberösterreich, 2 Etagen

Weitere Services

Lust auf eine Besichtigung?
Eine Frage zur Immobilie?
Nachricht hinzufĂĽgen
Mit der Nutzung der oben angegebenen Telefonnummer oder durch Klicken auf „Kontaktieren“ akzeptierst Du die Allgemeinen Nutzungsbedingungen, denen Du jederzeit widersprechen kannst. Weitere Informationen zum Datenschutz

Ăśber den Anbieter

Hans-Sachs-StraĂźe 1a, 4600 WELS
partner badge
Partnerschaft
Herr Stefan SchmiedsederDein Kontakt
Online-ID: 2g6js5t
Referenznummer: OBGC20241116130700374e00825caf8
eurea Real Estates GmbH
Nachricht hinzufĂĽgen
Mit der Nutzung der oben angegebenen Telefonnummer oder durch Klicken auf „Kontaktieren“ akzeptierst Du die Allgemeinen Nutzungsbedingungen, denen Du jederzeit widersprechen kannst. Weitere Informationen zum Datenschutz
Wie zufrieden bist du mit dieser Seite (nicht mit der Immobilie selbst)?