

Wohnung zur Miete - Erstbezug999 €2 Zimmer • 41,8 m² • EG
999 €
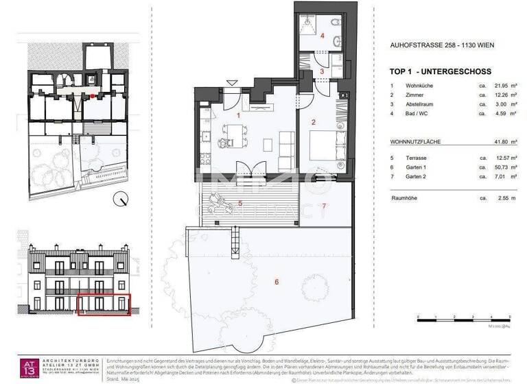
2 Zimmer • 41,8 m² • EG
Grüne Auszeit zur Miete: Charmante 2-Zimmer-Gartenwohnung
Merkmale
- Bezug: sofort
- Erdgeschoss
- offene Küche
- Personenaufzug
- Garten
- Terrasse
- Rollstuhlgerecht
- Bad mit Dusche
Grundrisse
Grundrisse
1 / 1
Realisiere Dein Projekt
Bausubstanz und Energie
Heizwärmebedarf (HWB)
B
Gesamtenergieeffizienz (fGEE)
A
- Baujahr2025
- Zustand der ImmobilieNeubau, Massivhaus, Erstbezug
- HeizungsartFußbodenheizung
- EnergieträgerLuft-/Wasser-Wärmepumpe
Mietkosten
Gesamtmiete
1.260 €
Nettokaltmiete
10.382,78 €/m²
999,15 €
Betriebskosten
146,30 €
Kaution
3 Bruttomonatsmieten
Weitere Preisinformationen
Nettokaltmiete: 999,15 EUR
Lage

Wien (1130)
Weitere Informationen
Weitere Services
Lust auf eine Besichtigung?
Eine Frage zur Immobilie?
Über den Anbieter
IMMOcontract Immobilien Vermittlung GmbHMaklerbüro
Schnirchgasse 17, 1030 WIEN
Herr Julian PelzmannDein Kontakt
Online-ID: 2neng5p
Referenznummer: OBGC2026022710174577753c10c8825

IMMOcontract Immobilien Vermittlung GmbH
Bewertung: 3,5 von 5 Sternen
Wie zufrieden bist du mit dieser Seite (nicht mit der Immobilie selbst)?

