

KNOCHE Immobilien
Herr/Frau Elmar Knoche
022 ···
Nr. anzeigenPreise & Kosten
Provision für Käufer
Nach dem Zustandekommen des Kaufvertrages ist vom Käufer eine Vermittlungsgebühr in Höhe von 1,5 % des beurkundeten Kaufpreises zuzüglich der gesetzlichen Mehrwertsteuer zu begleichen (=12.834,20 Euro).
Lage
Das angebotene Wohnhaus liegt in Rösrath-Hoffnungsthal in ruhiger, naturverbundener Lage an der Sülz in einer Sackgasse ohne Durchgangsverkehr. Das Grundstück reicht bis an das Ufer der Sülz. An der Gartenseite befindet keine unmittelbare gegenüberliegende Bebauung. Der Blick geht überwiegend ins Grüne...
Das Haus
Baujahr
1999
Bezug
nach Absprache
Energie & Heizung
Warum sehe ich diese Anzeige? – Du siehst diese Anzeige basierend auf Ihrer Navigation auf unserer Website und den Suchkriterien, die du verwendet hast.
Energieausweistyp
Bedarfsausweis
Gebäudetyp
Wohngebäude
Baujahr laut Energieausweis
1999
Wesentliche Energieträger
Gas
Gültigkeit
03.11.2025 bis 02.11.2035
Effizienzklasse
C
Endenergiebedarf
94,47 kWh/(m²·a)
Weitere Energiedaten
Haustyp
Niedrigenergiehaus
Energieträger
Gas
Heizungsart
Zentralheizung
Details
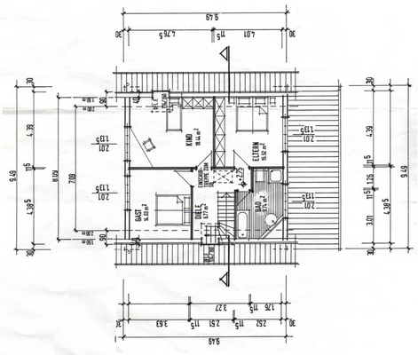
Objektbeschreibung
Errichtung als freistehendes Einfamilienhaus mit Garage in der Zeit von 09. 1998 - 04. 1999
Auszug aus der Baubeschreibung
Bodenplatte in B25 WU (wasserundurchlässig nach DIN) für das Wohngebäude und Garage in den Abmessungen 12,50 m x 9,50 m
Außenwände Erdgeschoss Ytong Planblock mit einer Stärke...
Ausstattung
611 m² - Grundstück mit eigenem Zugang zum Flussufer der Sülz
Wärmeschutz auf Niedrigenergiehaus-Standard
1 ½ - geschossige Bauweise
144 m² - Wohnfläche zzgl. 23 m² - Nutzfläche
offene Küche mit Wohn-Essbereich, Büro, Hauswirtschaftsraum, Abstellraum, Gäste-WC, 2 Dielen
Garage mit...
Weitere Informationen
Sonstiges
Angaben zum Energieausweis:
Erstellungsdatum: 03.11.2025
Gültigkeit bis 02.11.2035
Bedarfsausweis
Baujahr Gebäude 1999
Baujahr Anlagentechnik 2014
(Baujahr Warmwasserspeicher 2024)
Endenergieverbrauch 94,47 kWh/(m²-a)
Energie-Effizienzklasse C
wesentlicher Energieträger...
Anbieter der Immobilie
KNOCHE Immobilien
Landwehrstraße 12, 51709 Marienheide

Online-ID: 2mdkd54
Finde Angebote wie dieses
Hier geht es zu unserem Impressum, den Allgemeinen Geschäftsbedingungen, den Hinweisen zum Datenschutz und nutzungsbasierter Online-Werbung.