NEUE HEIMAT TIROL Gemeinnützige WohnungsGmbH

Frau Katrin Scheiber

Kontaktiere den Anbieter schriftlich, es ist keine Telefonnummer hinterlegt.

Sonnenverwöhnte Wohnungen mit großzügiger Terrasse in Landeck

€ 298.718
Kaufpreis
k.A.
Wohnfläche
k.A.
Zimmer
Finanzierung berechnen mit durchblicker

Der Anbieter dieses Objekts hat gegenüber der AVIV Germany GmbH als Betreiber dieses Online-Marktplatzes erklärt, nicht als Unternehmer im Sinne des § 1 KSchG zu handeln. Die im Verbraucherschutzrecht der Union verankerten Verbraucherrechte (insbesondere Informationspflichten und Rücktritts- bzw. Widerrufsrechte) finden auf den Vertrag zwischen dem Anbieter des Objekts und Ihnen (dem Interessenten) keine Anwendung.

Gewerblicher Anbieter

Der Anbieter dieses Objekts hat gegenüber der AVIV Germany GmbH als Betreiber dieses Online-Marktplatzes erklärt, als Unternehmer im Sinne des § 1 KSchG zu handeln.

AdresseStraße nicht freigegeben
6500 Landeck 
Auf Karte ansehen

Preise & Kosten

Kaufpreis € 298.718

Provision für Käufer

Bitte beachte, das Angebot kann bei Vertragsabschluss die Zahlung einer Provision beinhalten. Weitere Informationen erhältst Du vom Anbieter.

Lage

Die Wohnung

Bezug

Frühjahr 2024

Wohnanlage

  • Baujahr: 2023
  • Personenaufzug

Energie & Heizung

Weitere Energiedaten

Heizungsart

Fußbodenheizung, Luft-/Wasser-Wärmepumpe

Details

Objektbeschreibung

In Landeck, Prandtauersiedlung, wurde eine Wohnanlage mit 11 Eigentumswohnungen (subjektgefördert und freifinanzeirt) errichtet. 

Hierbei handelt es sich um subjektgeförderte Eigentumswohnungen und eine Förderung kann in Anspruch genommen werden. Für die Förderungswürdigkeit ist unter anderem ein Hauptkriterium...

Mehr anzeigen

Weitere Informationen

Stichworte
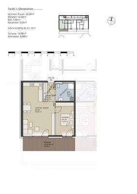
Tiefgarage vorhanden, Süd-Balkon/Terrasse, Nutzfläche: 61,00 m², Balkon-Terrassen-Fläche: 17,00 m², Bundesland: Tirol

Dokumente

file_pdfDokument 1angle_rightfile_pdfDokument 2angle_right

Anbieter der Immobilie

Partner
user

Frau Katrin Scheiber

Dein Ansprechpartner

Kontaktiere den Anbieter schriftlich, es ist keine Telefonnummer hinterlegt.

Anbieter-Profil Anbieter-Impressum

Online-ID: 2a28e54

Referenznummer: OBGC20230510141250102d7c8c0f22c

Finde Angebote wie dieses

imageimageimage

Günstige Immobilienfinanzierung einfach online berechnen

Persönliches Angebot berechnen

Hier geht es zu unserem Impressum, den Allgemeinen Geschäftsbedingungen, den Hinweisen zum Datenschutz und nutzungsbasierter Online-Werbung.