

Jones Lang LaSalle SE - Office Leasing Rhein-Ruhr
Herr Martin Jahnke
+49 ···
Nr. anzeigenPreise & Kosten
Provision für Mieter
provisionspflichtig für den Mieter/Käufer
Warum sehe ich diese Anzeige? – Du siehst diese Anzeige basierend auf Ihrer Navigation auf unserer Website und den Suchkriterien, die du verwendet hast.
Lage
Eving ist, neben den Stadtbezirken Mengede und Scharnhorst, der nördlichste Stadtbezirk von Dortmund und grenzt außerdem an den Stadtbezirk Innenstadt-Nord. Der Teilmarkt bietet alles, was einen sympathischen, urbanen und zentral gelegenen Standort auszeichnet. Durch die Nähe zu den Autobahnen A 40, A 45 und A 2 sowie einer...
Büro-/Praxisfläche
Kategorie
Bürofläche
Baujahr
1900
Bezug
Auf Anfrage
Details
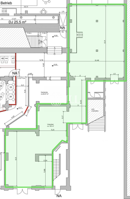
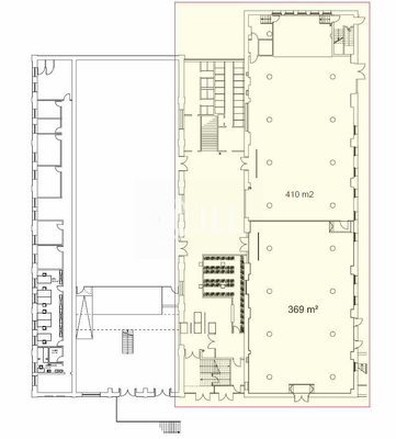
Objektbeschreibung
Diese außergewöhnliche Liegenschaft imponiert durch ihr ausgeprägtes industrielles Design. Das ehemalige Zechengebäude verfügt über verschiedene Räumlichkeiten, die als Büro-/Praxis-/Schulungsflächen ausgebaut werden können. Besonders die im Obergeschoss eingebauten Oberlichter sorgen für ein angenehmes Ambiente und eine...
Weitere Informationen
Stichworte
Gesamtfläche: 1.899,00 m²
Sonstiges: EDV-Verkabelung
Anbieter der Immobilie
Jones Lang LaSalle SE - Office Leasing Rhein-Ruhr
Grugaplatz 2-4, 45131 Essen

Online-ID: 2a6hb5s
Referenznummer: 4@of64896@14@0
Finde Angebote wie dieses
Hier geht es zu unserem Impressum, den Allgemeinen Geschäftsbedingungen, den Hinweisen zum Datenschutz und nutzungsbasierter Online-Werbung.