Version: 8.26.0Navigation überspringen
770.000 €
8 Zimmer  •  194,3 m²  •  1.181 m² Grundstück  •  frei ab 01.08.2026
Immowelt logo

Mehrfamilienhaus zum Kauf
770000 €
3.963 €/m²
8 Zimmer  •  194,3 m²  •  1.181 m² Grundstück  •  frei ab 01.08.2026

AIGNER - Großes Zweifamilienhaus mit Eckgrundstück und Ausblick in ruhiger Lage

Dieses gepflegte Zweifamilienhaus empfängt Sie über eine überdachte Einfahrt mit zwei Garagen, von der aus Sie direkt in das zentrale Treppenhaus gelangen, das beide Wohneinheiten erschließt. Dank zweier separater Eingänge können die Wohnungen unabhängig voneinander genutzt oder zu einem großzügigen Einfamilienhaus zusammengeführt werden - ideal für Mehrgenerationenwohnen oder die Kombination aus Eigennutzung und Vermietung.

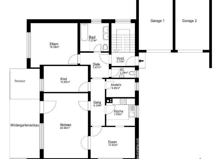
Im Erdgeschoss betreten Sie über den Flur eine einladende Diele mit geräumigem Elternschlafzimmer, Gäste-WC und großzügigem Badezimmer. Entlang des Flures befinden sich das Kinderzimmer sowie ein praktischer Abstellraum. Der Wohnbereich umfasst eine separate Küche mit angrenzendem Essbereich und ein gemütliches Wohnzimmer.

Ein besonderes Highlight ist der lichtdurchflutete Wintergarten mit großzügigen Glasfronten, der Wohn- und Gartenbereich harmonisch verbindet. Von hier aus gelangen Sie auf die Terrasse und in den liebevoll angelegten Garten mit eigenem Teich - ein idyllischer Rückzugsort für entspannte Stunden im Freien.

Das Obergeschoss entspricht in seiner Raumaufteilung vollständig dem Erdgeschoss und verfügt über einen identischen Grundriss. Sämtliche Räume - darunter Schlafzimmer, Kinderzimmer, Küche mit Essbereich, Wohnzimmer, Badezimmer, Gäste-WC sowie Abstellraum - sind in gleicher Anordnung vorhanden. Vom Wohnzimmer aus betreten Sie den Balkon mit schönem Ausblick. Im Keller bieten mehrere großzügige Räume viel Stauraum, ein beheizbarer Hobbyraum und als Highlight ein liebevoll ausgebautes Heimkino für unvergessliche Filmabende wie im eigenen Kinosaal. Alles in allem vereint dieses Haus durchdachte Raumaufteilungen, flexible Nutzungsmöglichkeiten, lichtdurchflutete Wohnbereiche und einen traumhaften Garten zu einem außergewöhnlichen Zuhause, das Komfort, Stil und Lebensqualität auf höchstem Niveau bietet.

Merkmale

  • frei ab 01.08.2026
  • 1.181 m² Grundstück
  • Einbauküche
  • Gäste-WC
  • Keller
  • Terrasse
  • 2 Stellplätze: 2 Garagen
* Großzügiger, liebevoll angelegter Garten mit eigenem Teich - perfekt zum Entspannen und für sommerliche Stunden im Freien
* Zwei Garagen mit direktem Zugang zur überdachten Einfahrt
* Ausgebautes Heimkino und zusätzlicher Hobbyraum im Keller - ideal für Filmabende, Freizeit oder kreative Projekte
* Heller Wintergarten mit großzügigen Glasfronten, der Wohnbereich und Garten elegant verbindet
* Zwei moderne Badezimmer und zwei Gäste-WCs - komfortabel für Familie und Gäste
* Obergeschoss modernisiert und stilvoll ausgestattet
* Umweltfreundliche Pelletsheizung für effiziente Wärmeversorgung
* Flexibles Wohnkonzept: zwei separat zugängliche Wohnungen über das Treppenhaus, ideal für Mehrgenerationenwohnen oder individuelle Nutzung
* Kamin im Obergeschoss sorgt für gemütliche Wohlfühlatmosphäre

Grundrisse

Grundrisse
1 / 3

Bausubstanz und Energie

Energieausweis

  • Baujahr1974
  • Zustand der ImmobilieGepflegt
  • HeizungsartZentralheizung
  • EnergieträgerPellets
Immowelt logo

Preisdetails

Kaufpreis
770000 €
3.962,54 €/m²
Provision für Käufer
3,57% inkl. MwSt.
Die Käuferprovision beträgt 3,57% inkl. gesetzlicher Mehrwertsteuer vom wirtschaftlichen Kaufpreis. Unsere Angebote erfolgen freibleibend und unverbindlich. Irrtum und Zwischenverkauf bleiben vorbehalten.
Weitere Preisinformationen
2 Garagenstellplätze
Geschätzte Gesamtkosten
839.839 €1
Kaufpreis
770.000 €
Notarkosten (1,5%)
11.550 €
Grunderwerbsteuer (3,5%)
26.950 €
Provision für Käufer (3,57%)
27.489 €
Grundbucheintrag (0,5%)
3.850 €
1Der angezeigte Wert ist eine automatisch berechnete Schätzung von immowelt.
2Bei den Angaben handelt es sich um ortsübliche Werte. Individuelle Kosten können abweichen.

Lage

address-icon
AuAu in der Hallertau (84072)
Der Anbieter hat die genaue Adresse nicht freigegeben
Die Immobilie befindet sich in attraktiver Wohnlage von Au in der Hallertau - einem charmanten Markt im Landkreis Freising, der besonders für seine hohe Lebensqualität und sein naturnahes Umfeld geschätzt wird. Die Umgebung ist geprägt von gepflegten Wohnhäusern, viel Grün und einer angenehm ruhigen Nachbarschaft.

Au in der Hallertau liegt im Herzen des weltbekannten Hopfenanbaugebiets Hallertau und verbindet ländliche Idylle mit einer gut ausgebauten Infrastruktur. Einkaufsmöglichkeiten für den täglichen Bedarf, Bäckereien, Ärzte, Apotheken sowie Cafés und Restaurants sind bequem erreichbar. Familien profitieren zudem von Kindergärten, einer Grund- und Realschule direkt im Ort.

Die reizvolle Landschaft rund um Au lädt zu vielfältigen Freizeitaktivitäten ein. Zahlreiche Rad- und Wanderwege führen durch die sanften Hügel der Hallertau und bieten ideale Bedingungen für Natur- und Sportliebhaber. Auch Vereine und kulturelle Angebote sorgen für ein lebendiges Gemeindeleben.

Verkehrstechnisch ist Au gut angebunden: Über die nahegelegene Bundesstraße B301 sowie die Autobahn A93 sind Städte wie Freising, Landshut, Ingolstadt und München zügig erreichbar. Der Flughafen München ist ebenfalls in angenehmer Fahrzeit erreichbar und unterstreicht die Attraktivität des Standorts - sowohl für Pendler als auch für Vielreisende.

Die Lage vereint somit Ruhe, Naturverbundenheit und eine solide Infrastruktur - ideal für alle, die ein entspanntes Wohnen im Grünen mit guter Erreichbarkeit urbaner Zentren verbinden möchten.

Weitere Informationen

Sonstiges Energieausweistyp: Bedarfsausweis
Energiekennwert: 247,3 kWh/(m²*a)
Energieeffizienzklasse: G
Baujahr: 1974
Befeuerung/Energieträger: Pelletheizung
Heizungsart: Zentralheizung Stichworte Garage vorhanden, Stellplatz vorhanden, Nutzfläche: 267,00 m², Anzahl der Schlafzimmer: 5, Anzahl der Badezimmer: 2, Anzahl Terrassen: 2, 2 Etagen

Weitere Services

Lust auf eine Besichtigung?
Eine Frage zur Immobilie?
Nachricht hinzufügen
Mit der Nutzung der oben angegebenen Telefonnummer oder durch Klicken auf „Kontaktieren“ akzeptierst Du die Allgemeinen Nutzungsbedingungen, denen Du jederzeit widersprechen kannst. Weitere Informationen zum Datenschutz

Über den Anbieter

Ruffinistraße 26, 80637 München
Herr Leon AvdyliDein Kontakt
Online-ID: 26X9INLP5EE8
Referenznummer: 43370
Wie zufrieden bist du mit dieser Seite (nicht mit der Immobilie selbst)?