
IEA Immobilien
Herr/Frau Peter Hennecke
093 ···
Nr. anzeigenPreise & Kosten
Provision für Käufer
Bitte beachte, das Angebot kann bei Vertragsabschluss die Zahlung einer Provision beinhalten. Weitere Informationen erhältst Du vom Anbieter.
Lage
1 -A - LAGE | MEHR AUSSICHT geht nicht!
Diese BESONDERE Immobilie mit unverbaubaren Blick und Aussicht über Suhl befindet sich in zentraler Stadtteillage von Suhl Kernstadt in Richtung Schmiedefeld, nur 3 Gehminuten von allen Einrichtungen des täglichen Bedarfs entfernt.
Suhl ist eine der größten Städte...
Das Haus
Kategorie
Einfamilienhaus
Baujahr
1964 | 2023
Bezug
nach Vereinbarung
Energie & Heizung
Warum sehe ich diese Anzeige? – Du siehst diese Anzeige basierend auf Ihrer Navigation auf unserer Website und den Suchkriterien, die du verwendet hast.
Energieausweistyp
Bedarfsausweis
Gebäudetyp
Wohngebäude
Gültigkeit
bis 12.06.2033
Effizienzklasse
A+
Weitere Energiedaten
Haustyp
Massivhaus
Energieträger
Erdwärme, Gas
Heizungsart
Fußbodenheizung, Zentralheizung
Details
Objektbeschreibung
IDYLLISCHES WOHNEN NAHEZU OHNE JEGLICHE NACHBAREINBLICKE!
Ein Anwesen und Haus mit Charme, Flair und Charakter zum Verlieben - Form und Funktion im Einklang!
Verwirklichen Sie Ihre eigenen Vorstellungen zur Finalauswahl der Ausbaumaterialien, -Texturen und -Farbtöne im Rahmen der preislichen Verkäufervorgaben!!!...
Ausstattung
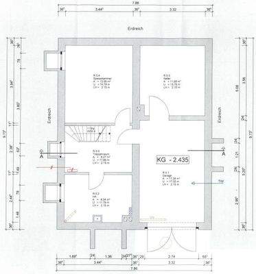
Dieses Objekt verteilt seine Gesamtfläche von ca. 174 m² auf 3 Etagen (KG, EG, OG | DG) wie folgt:
1. Kellergeschoss mit ca. 59 m² anrechenbare NFL
2. Erdgeschoss mit ca. 60,5 m² anrechenbare WFL zzgl. Terrasse mit ca. 15 m² Realgröße
3. Obergeschoss mit ca. 54,5 m² anrechenbare WFL
Der Ausbau der teils...
Weitere Informationen
Sonstiges
Sie suchen das BESONDERE WOHNHIGHLIGHT - SIE HABEN ES mit entsprechender Werthaltigkeit GEFUNDEN!
Allein der Bodenrichtwert liegt bei aktuell über 102.000 EUR!
ANSPRECHPARTNER für Terminvereinbarungen und Fragen zum Objekt etc. sind:
IEA Immobilien Würzburg, Südthüringen, Bad Kissingen...
Dokumente
Anbieter der Immobilie
Online-ID: 2aa235x
Referenznummer: 1010
Finde Angebote wie dieses
Hier geht es zu unserem Impressum, den Allgemeinen Geschäftsbedingungen, den Hinweisen zum Datenschutz und nutzungsbasierter Online-Werbung.