

ImmoGrund Tegernsee
Frau Anna Aue
017 ···
Nr. anzeigenPreise & Kosten
Provision für Käufer
provisionsfrei
Lage
Neuhaus liegt am südlichen Ende des Schliersees im Alpenvorland. Im Süden finden sich die Berge Brecherspitz, Spitzingsee-Plateau und Jägerkamp. Neuhaus/Schliersee - ein Outddor-Sportparadies:
See und Berge - das ist Lebensqualität für Sie!
Die Lage vom "Unser Schliers" könnte wohl kaum besser sein: zentral und...
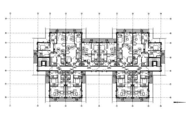
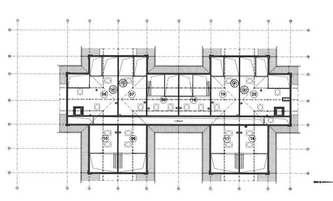
Die Wohnung
Wohnungslage
2. Geschoss
Bezug
2025
Wohnanlage
Energie & Heizung
Warum sehe ich diese Anzeige? – Du siehst diese Anzeige basierend auf Ihrer Navigation auf unserer Website und den Suchkriterien, die du verwendet hast.
Energieausweistyp
Bedarfsausweis
Gebäudetyp
Wohngebäude
Wesentliche Energieträger
LUFTWP
Gültigkeit
bis 31.10.2025
Effizienzklasse
A+
Endenergiebedarf
18,00 kWh/(m²·a)
Weitere Energiedaten
Energieträger
Gas
Heizungsart
Fußbodenheizung, Luft-/Wasser-Wärmepumpe
Details
Objektbeschreibung
Hier fühlen Sie sich wohl - hohe Räume, viel Spielraum zum Gestalten! Rückzugsort im Galeriebereich mit absolutem Privatbereich - Schlafzimmer en suite Bad mit freistehender Badewanne und viel Platz.
Bald bezugsfertig: Die Übergabe der Wohnungen steht kurz bevor - sichern Sie sich jetzt noch eine der letzten...
Ausstattung
Das Haus wird barrierearm errichtet
Durchdachte Architektur und Raumgestaltung
Alle Bäder erhalten eine hochwertige Sanitärausstattung mit Elektro-Handtuchwärmer, bodengleiche Duschen mit Ganzglasabtrennung, freistehende Badewanne.
Bäder:
Bodenbelag mit Fliesen aus Feinsteinzeug 60 cm x 60 cm
Wände mit Fliesen...
Preisinformation
2 Tiefgaragenstellplätze, Kaufpreis je: 35.000,00 EUR
Weitere Informationen
Sonstiges
Alle Angaben sind ohne Gewähr und basieren ausschließlich auf Informationen, die uns vom Verkäufer zur Verfügung gestellt wurden. Darstellungen/Möblierungen sind Visualisierungen, die nur als Idee für den Käufer zur Verfügung stehen und nicht im Kaufpreis enthalten sind.
Die Grunderwerbsteuer, Notar- und...
Anbieter der Immobilie
ImmoGrund Tegernsee
Radlmaierweg 1, 83707 Bad Wiessee

Online-ID: 2aa8j54
Referenznummer: 66_7
Finde Angebote wie dieses
Hier geht es zu unserem Impressum, den Allgemeinen Geschäftsbedingungen, den Hinweisen zum Datenschutz und nutzungsbasierter Online-Werbung.