
Immobilien Ried
Herr Thomas Pfeiffer
017 ···
Nr. anzeigenPreise & Kosten
Provision für Käufer
-auf den Grundstückskaufpreis 3,57% inkl. MwSt.
Lage
Herzlich willkommen in der bezaubernden Stadt Landsberg am Lech, wo Tradition auf Moderne trifft und Lebensqualität großgeschrieben wird. Das hier präsentierte Einfamilienhaus befindet sich in einer der begehrtesten Wohnlagen der Stadt und bietet eine ideale Kombination aus urbaner Anbindung und naturnahem Wohnen.
Die...
Das Haus
Kategorie
Einfamilienhaus
Baujahr
2027
Bezug
Frühjahr 2027
Energie & Heizung
Warum sehe ich diese Anzeige? – Du siehst diese Anzeige basierend auf Ihrer Navigation auf unserer Website und den Suchkriterien, die du verwendet hast.
Weitere Energiedaten
Heizungsart
Fußbodenheizung, Luft-/Wasser-Wärmepumpe
Details
Objektbeschreibung
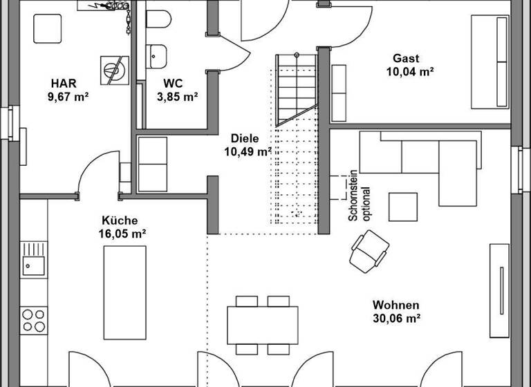
Dieses moderne Einfamilienhaus (EG+OG) entsteht in Landsberg am Lech in ruhiger und grüner Lage. Das Haus wird massiv in Ziegelbauweise mit modernem Wärmedämmverbundsystem gebaut und bietet Ihnen flexible Grundrisse. Es wird nach neuesten energetischen Standards für Sie gebaut. Die Wohnfläche beträgt ca. 159 m². Das Haus...
Ausstattung
Das Einfamilienhaus verfügt über insgesamt 2 Etagen (EG+OG). Im Erdgeschoß befinden sich der große Wohn- Essbereich, ein Gästezimmer, die Küche, der Hauswirtschaftsraum, ein Flur, und ein WC. Im Obergeschoß sind 3 Schlafzimmer und ein Bad. Die genaue Aufteilung ist noch genau bestimm- und variierbar.
Das Haus verfügt...
Preisinformation
1 Garagenstellplatz
Weitere Informationen
Sonstiges
Haftungsausschluss:
Alle Angaben in diesem Exposé wurden mit größter Sorgfalt zusammengestellt und beruhen auf Informationen, die uns vom Eigentümer bzw. Dritten zur Verfügung gestellt wurden. Eine Gewähr für die Richtigkeit, Vollständigkeit und Aktualität dieser Angaben können wir jedoch nicht...
Anbieter der Immobilie
Immobilien Ried
Leopoldstr. 244, 80807 München
Online-ID: 2mh9m5t
Referenznummer: 2758
Finde Angebote wie dieses
Hier geht es zu unserem Impressum, den Allgemeinen Geschäftsbedingungen, den Hinweisen zum Datenschutz und nutzungsbasierter Online-Werbung.