

Büro zur Miete • provisionsfreiMietkosten auf Anfrage5 Zimmer • 210,3 m² Bürofläche
Mietkosten auf Anfrage
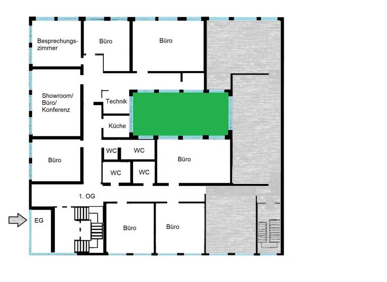
5 Zimmer • 210,3 m² Bürofläche
Hochwertige Bürofläche
Merkmale
- 1. Geschoss
- Kochnische, TeekĂĽche
- 3 Stellplätze: Außen-Stellplatz
- DSL-Anschluss
- Raumaufteilung flexibel
- teilweise klimatisiert
- Bodenbelag: Fliesen, Kunststoff
- Beleuchtung: Deckenbeleuchtung
Grundrisse
Grundrisse
1 / 1
Realisiere Dein Projekt
Bausubstanz und Energie
Der Anbieter hat keine Informationen zum Energieverbrauch bereit gestellt.
- Baujahr1996
- HeizungsartZentralheizung
- EnergieträgerFernwärme
Mietkosten
Miete auf Anfrage
Miete pro Stellplatz
35 €
Provision fĂĽr Mieter
provisionsfrei; Provisionsfrei für den Pächter
Kaution
2 MM
Lage

Industriehafen, Mannheim (68169)
Der Anbieter hat die genaue Adresse nicht freigegeben
Weitere Informationen
Weitere Services
Lust auf eine Besichtigung?
Eine Frage zur Immobilie?
Ăśber den Anbieter
Sylvia Ams Immobilien + VermietungenMaklerbĂĽro
LanzstraĂźe 2a, 68794 Oberhausen-Rheinhausen
Frau Sylvia AmsDein Kontakt
Online-ID: 2k6zb5p
Referenznummer: 2524-3

Sylvia Ams Immobilien + Vermietungen
Wie zufrieden bist du mit dieser Seite (nicht mit der Immobilie selbst)?

