
WE&P GmbH
Frau Theresa Ober
080 ···
Nr. anzeigenPreise & Kosten
Provision für Käufer
provisionsfrei
Lage
Nur 50 Kilometer südlich von München entfernt, unmittelbar am Fuße der imposanten Alpenkette des Inntals, liegt Bad Aibling - ein malerischer Kur- und Urlaubsort, der Tradition und Zeitgeist verbindet und voller Lebensqualität steckt. Ob Jazz, Rock oder regionale Blasmusik, im ortseigenen Kur park liegt regelmäßig Musik in...
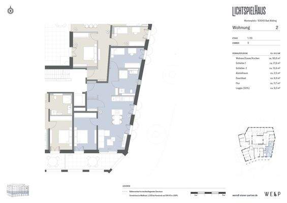
Die Wohnung
Wohnungslage
1. Geschoss
Bezug
2026
Wohnanlage
Energie & Heizung
Warum sehe ich diese Anzeige? – Du siehst diese Anzeige basierend auf Ihrer Navigation auf unserer Website und den Suchkriterien, die du verwendet hast.
Weitere Energiedaten
Heizungsart
Luft-/Wasser-Wärmepumpe
Details
Objektbeschreibung
Steuern sparen bei Vermietung: Die Kombination aus degressiver AfA, modernem Neubau und unserem Vermietungsservice macht den Einstieg in die Kapitalanlage besonders komfortabel - auch für Erstinvestoren.
Und auch für Selbstnutzer sind wir der perfekte Partner: Unsere Immobilien zeichnen sich durch top Bauqualität...
Ausstattung
Großzügig geschnittene Wohnungen mitten in der Stadt und doch voller Privatsphäre und Raum zum Rückzug - das Wohnkonzept des LICHTSPIELHAUSES bringt beide Komponenten auf architektonisch durchdachte Weise zusammen. Die verschiedenen Wohnungstypen sind unterschiedlich ausgerichtet und setzen subtile Schwerpunkte. Mal wird die...
Preisinformation
2 Tiefgaragenstellplätze, Kaufpreis je: 38.000,00 EUR
Weitere Informationen
Stichworte
Tiefgarage vorhanden, Anzahl der Schlafzimmer: 2, Anzahl der Badezimmer: 1, Anzahl Balkone: 1, 4 Etagen
Dokumente
Anbieter der Immobilie
WE&P GmbH
An der Alten Spinnerei 3 , 83059 Kolbermoor
Online-ID: 2adxq5c
Referenznummer: LSH 02
Finde Angebote wie dieses
Hier geht es zu unserem Impressum, den Allgemeinen Geschäftsbedingungen, den Hinweisen zum Datenschutz und nutzungsbasierter Online-Werbung.