
MS Immobilien und Verwaltungs GmbH
Frau Sylvia Schuster
016 ···
Nr. anzeigenPreise & Kosten
Provision für Käufer
2,975 incl. MwSt
Lage
Nähe Zentrum
Die ehemalige große Kreisstadt Döbeln liegt mittig zwischen den drei Großstädten Chemnitz, Leipzig und Dresden. Die Anschlußstelle zur A14 ist in 5 Fahrminuten zu erreichen und somit sind alle drei Städte in 30 bis 45 Fahrminuten zu erlangen. Die Burgstraße befindet sich zwischen dem Bahnhof und dem...
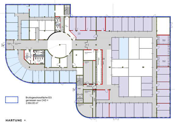
Die Ladenfläche
Baujahr
1995
Bezug
ab 01.11.2023
Energie & Heizung
Warum sehe ich diese Anzeige? – Du siehst diese Anzeige basierend auf Ihrer Navigation auf unserer Website und den Suchkriterien, die du verwendet hast.
Energieausweistyp
Verbrauchsausweis
Gebäudetyp
Nicht-Wohngebäude
Baujahr laut Energieausweis
2013
Wesentliche Energieträger
Gas
Gültigkeit
09.11.2020 bis 08.11.2030
Endenergieverbrauch (Wärme)
107,00 kWh/(m²·a) - Warmwasser enthalten
Weitere Energiedaten
Energieträger
Gas
Heizungsart
Zentralheizung
Details
Objektbeschreibung
Das angebotene Objekt umfasst das vollständige EG eines sehr gepflegten Wohn- und Geschäftshaus in sehr guter Lage von Döbeln. Die Gewerbeeinheite verfügt über ca. 2.082 qm. Bei Bedarf können weitere 532 qm im 1. Obergeschoss zugemietet.
Besonders attraktiv ist das Objekt durch seine hervorragende Verkehrsanbindung...
Weitere Informationen
Besichtigungstermine
Termine nach Vereinbarung. Telefonische Kontaktaufnahme bevorzugt.
Stichworte
Zustand: saniert, gepflegt
Serviceleistungen: Hausmeister
Sonstiges: Getrennte Damen- und Herren-WCs, frei werdend
Anbieter der Immobilie
MS Immobilien und Verwaltungs GmbH
Hauptstraße 119, 04736 Waldheim
Online-ID: 2ae6w5r
Referenznummer: 557-4
Finde Angebote wie dieses
Hier geht es zu unserem Impressum, den Allgemeinen Geschäftsbedingungen, den Hinweisen zum Datenschutz und nutzungsbasierter Online-Werbung.