

Villa zum Kauf1725000 €3.833 €/m²5 Zimmer • 450 m² • 802 m² Grundstück
1725000 €
3.833 €/m²
5 Zimmer • 450 m² • 802 m² Grundstück
Neue Luxusvilla mit Meerblick und angenehmer Aussicht auf Moraira in Teulada an der Costa Blanca
Merkmale
- 802 m² Grundstück
- Meerblick
- Swimmingpool
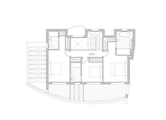
Grundrisse
Verschaffe dir einen genauen Überblick über die Raumaufteilung.

Realisiere Dein Projekt
Bausubstanz und Energie
Möchtest du Details zum Energieverbrauch?

- Zustand der ImmobilieNeubau
Preisdetails
Kaufpreis
1725000 €
3.833,33 €/m²
Provision für Käufer
Provisionsfrei für den Käufer
Lage

Teulada (03725)
Der Anbieter hat die genaue Adresse nicht freigegeben
Weitere Informationen
Weitere Services
Lust auf eine Besichtigung?
Eine Frage zur Immobilie?
Über den Anbieter
Thomas Immobilien GmbHMaklerbüro
Rosenweg 16, 72127 Kusterdingen
10 Jahre Partnerschaft
Frau Dora VazquezDein Kontakt
Online-ID: 23X668XHAL9K
Referenznummer: 4-28-59749

Thomas Immobilien GmbH
Bewertung: 4,2 von 5 Sternen
Wie zufrieden bist du mit dieser Seite (nicht mit der Immobilie selbst)?

