

Sirius Facilities GmbH
Herr Felix Meier
080 ···
Nr. anzeigenPreise & Kosten
Kaution
3 Bruttowarmmieten
Provision für Mieter
Die Vermietung erfolgt provisionsfrei!
Warum sehe ich diese Anzeige? – Du siehst diese Anzeige basierend auf Ihrer Navigation auf unserer Website und den Suchkriterien, die du verwendet hast.
Lage
Dank der Nähe zum Flughafen und einer ausgezeichneten Verkehrsanbindung - sowohl über das Straßennetz als auch den öffentlichen Nahverkehr - ist der Sirius Business Park Düsseldorf-Airport bequem erreichbar. Gegenüber des Parks halten verschiedene Buslinien und der Flughafen mit Bahnhof ist nur 1 km entfernt. Für Autofahrer...
Büro-/Praxisfläche
Kategorie
Bürofläche
Geschoss
Erdgeschoss
Energie & Heizung
Warum sehe ich diese Anzeige? – Du siehst diese Anzeige basierend auf Ihrer Navigation auf unserer Website und den Suchkriterien, die du verwendet hast.
Weitere Energiedaten
Heizungsart
Etagenheizung
Details
Objektbeschreibung
Sirius Business Park Düsseldorf-Airport - moderne Büros und großzügige Lagerflächen im Düsseldorfer Norden, direkt am Airport. Funktioniert als Verwaltungs- und Logistik-Hub. Vor Ort: 24/7-Zugang, Parkplätze, E-Ladestationen und sehr gute Verkehrsanbindung.
Geeignet für: Headquarter/Team-Hubs, Shared...
Ausstattung
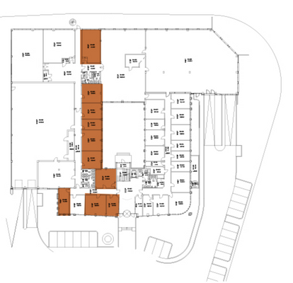
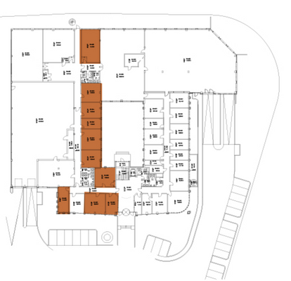
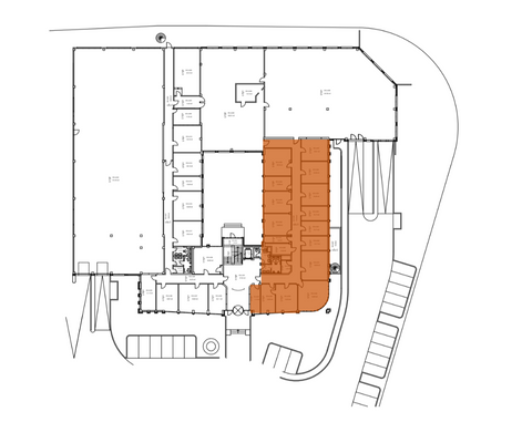
+ Gebäude Nr. 22 im Erdgeschoss
+ Standard-Büroausstattung (Teppich, Datenverkabelung, Sonnenschutz)
+ DSL-Internetzugang
+ Optionale Möblierung
+ Etagenheizung
+ Kunststoff-Fenster
+ Teeküche
+ Separate Damen- und Herren-WCs
+ 24/7 Zugang zur Mietfläche
+ Stellplatz-Anmietoption
Rufen...
Weitere Informationen
Sonstiges
*Das Angebot ist abhängig von der Verfügbarkeit und ist nicht kombinierbar mit anderen Rabatten und Aktionen. Das Angebot gilt, sofern die beidseitige Vertragsunterschrift bis zum 31.12.25 geleistet wurde und bezieht sich auf Verträge mit einer Mindestlaufzeit von 36 Monaten. Das Angebot bezieht sich zudem...
Anbieter der Immobilie

Online-ID: 2afms5g
Referenznummer: A11152
Finde Angebote wie dieses
Hier geht es zu unserem Impressum, den Allgemeinen Geschäftsbedingungen, den Hinweisen zum Datenschutz und nutzungsbasierter Online-Werbung.