
Thomas Immobilien GmbH
Frau Dora Vazquez
017 ···
Nr. anzeigenPreise & Kosten
Provision für Käufer
Provisionsfrei für den Käufer
Das Haus
Kategorie
Villa
Details
Objektbeschreibung
NEU GEBAUTE VILLEN IN LOS URRUTIAS, MURCIA
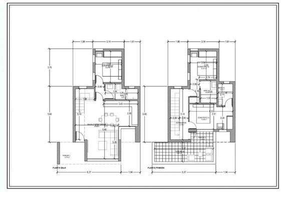
Neubau einer modernen Villa in 200m Entfernung vom Strand. Die helle Villa bauen über 2 Etagen, hat 3 Schlafzimmer und 3 Bäder.
Das Wohnzimmer bietet Zugang zur Terrasse mit privatem Pool von 6m x 3m.
Die offene Küche ist voll ausgestattet mit Haushaltsgeräten und...
Weitere Informationen
Stichworte
Anzahl der Schlafzimmer: 3, Anzahl der Badezimmer: 3, Bundesland: Alicante
Anbieter der Immobilie
Online-ID: 2ah2l5d
Referenznummer: 4-28-REDSP-33043
Finde Angebote wie dieses
Hier geht es zu unserem Impressum, den Allgemeinen Geschäftsbedingungen, den Hinweisen zum Datenschutz und nutzungsbasierter Online-Werbung.