

Perfekt Immo GmbH
Herr Hans-Peter Zangerle
+43 ···
Nr. anzeigenPreise & Kosten
Provision für Käufer
3,6% des Kaufpreises
Lage
6471 Arzl im Pitztal
Die Immobilie
Zu diesem Angebot wurden vom Anbieter keine weiteren Daten hinterlegt. Für weitere Informationen bitte den Anbieter kontaktieren.
Nach Informationen fragenDetails
Objektbeschreibung
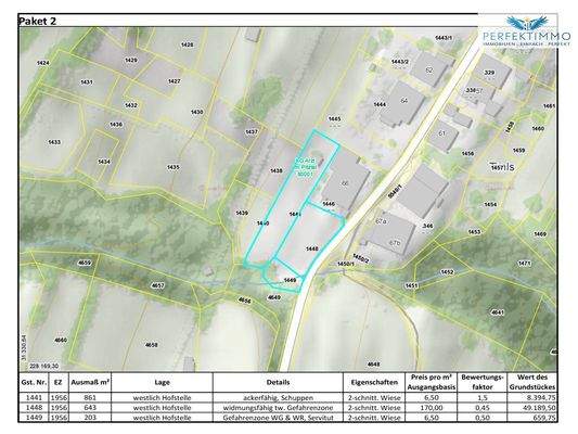
In Arzl im Pitztal kommen mehrere land- und forstwirtschaftliche Grundstücke (ohne Hofstelle) zum Verkauf.
Der Kauf kann wahlweise im Gesamten erfolgen oder in den folgenden Paketen.
PAKET 2: Gesamtfläche 1.707 qm, Kaufpreis € 58.244,00
PAKET 3: Gesamtfläche 4.344 qm, Kaufpreis €...
Preisinformation
Der Preis für die einzelnen Pakete beginnt bei EUR 25.788,10.
Weitere Informationen
Stichworte
Bundesland: Tirol
Anbieter der Immobilie
Perfekt Immo GmbH
Siedlung 31, 6463 KARRÖSTEN

Online-ID: 2albv5y
Referenznummer: OBGC202206011045299993251e15c5b
Finde Angebote wie dieses
Hier geht es zu unserem Impressum, den Allgemeinen Geschäftsbedingungen, den Hinweisen zum Datenschutz und nutzungsbasierter Online-Werbung.