
Jones Lang LaSalle SE - Office Leasing Köln
Frau Angela Azzarito
+49 ···
Nr. anzeigenPreise & Kosten
Provision für Mieter
provisionspflichtig für den Mieter/Käufer
Abschreibung/Anlage
Denkmalschutz-Afa
Warum sehe ich diese Anzeige? – Du siehst diese Anzeige basierend auf Ihrer Navigation auf unserer Website und den Suchkriterien, die du verwendet hast.
Lage
Der Rolshover Hof liegt äußerst verkehrsgünstig nahe der A4. Die Haltestelle der Linie 7 ist innerhalb weniger Gehminuten erreichbar und bietet eine direkte Bahnverbindung in die Kölner Innenstadt.
Nette Restaurants für den Kundenbesuch finden Sie auf der nahegelegenen Siegburger Straße, ein breit gefächertes Service- und...
Büro-/Praxisfläche
Kategorie
Bürofläche
Bezug
Auf Anfrage
Details
Objektbeschreibung
Der Rolshover Hof besteht aus dem zweigeschossigen Herrenhaus mit verputztem Backsteinmauerwerk aus dem Jahr 1875 sowie aus drei ehemals landwirtschaftlich genutzten Vorgängerbauten, dessen Ursprung im Jahr 1803 bezeugt wurde. Die mittlerweile denkmalgeschützte Hofanlage, welche im Mittelalter von Hufnern und später von...
Preisinformation
45 Stellplätze, Miete je: 60,00 EUR
Weitere Informationen
Stichworte
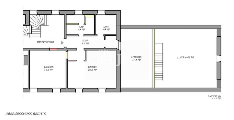
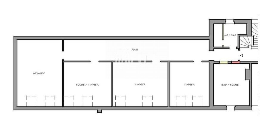
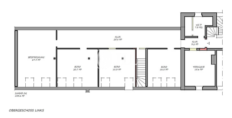
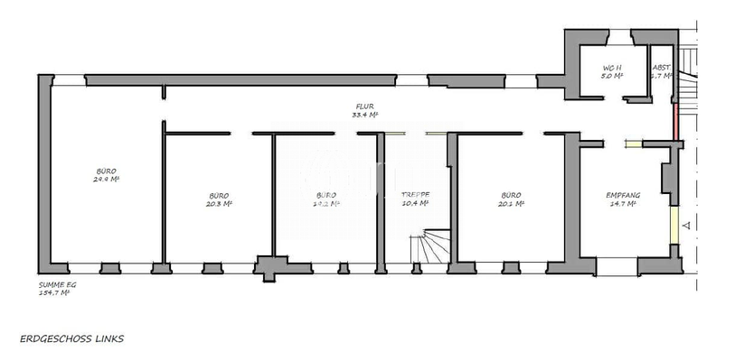
Gesamtfläche: 1.090,77 m²
Sonstiges: EDV-Verkabelung
Anbieter der Immobilie
Jones Lang LaSalle SE - Office Leasing Köln
Augustinerstraße 10, 50667 Köln
Online-ID: 2am5q5c
Referenznummer: 4@of49610@14@0
Finde Angebote wie dieses
Hier geht es zu unserem Impressum, den Allgemeinen Geschäftsbedingungen, den Hinweisen zum Datenschutz und nutzungsbasierter Online-Werbung.