
Jones Lang LaSalle SE - Office Leasing Köln
Frau Angela Azzarito
+49 ···
Nr. anzeigenPreise & Kosten
Provision für Mieter
provisionsfrei
Warum sehe ich diese Anzeige? – Du siehst diese Anzeige basierend auf Ihrer Navigation auf unserer Website und den Suchkriterien, die du verwendet hast.
Lage
Die Liegenschaft befindet sich im Kölner Stadtteil Mülheim. Die Lage des Objektes gewährleistet einen schnellen Anschluss an die Kölner Innenstadt und die umliegenden Autobahnen. Der Anschluss an den öffentlichen Nahverkehr ist gut. Unternehmen aus dem kreativen Bereich sowie Dienstleister im Bereich IT und der...
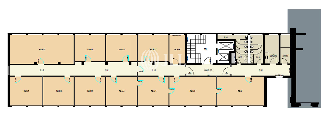
Büro-/Praxisfläche
Kategorie
Bürofläche
Baujahr
1970
Bezug
Sofort
Details
Ausstattung
- die Streckmetalldecke ist akustisch wirksam
- die Klima-Split Geräte haben eine Heiz- und Kühlfunktion
- klimatisierter Serverraum
Weitere Informationen
Stichworte
Gesamtfläche: 2.092,00 m², modernisiert: 2007
Sonstiges: EDV-Verkabelung
Anbieter der Immobilie
Jones Lang LaSalle SE - Office Leasing Köln
Augustinerstraße 10, 50667 Köln
Online-ID: 2amtd5j
Referenznummer: 4@of28397@14@0
Finde Angebote wie dieses
Hier geht es zu unserem Impressum, den Allgemeinen Geschäftsbedingungen, den Hinweisen zum Datenschutz und nutzungsbasierter Online-Werbung.