
MS Immobilien und Verwaltungs GmbH
Frau Sylvia Schuster
016 ···
Nr. anzeigenPreise & Kosten
Provision für Käufer
2,975 incl. MwSt
Abschreibung/Anlage
als Kapitalanlage geeignet
Lage
Die ehemalige große Kreisstadt Döbeln liegt mittig zwischen den drei Großstädten Chemnitz, Leipzig und Dresden. Die Anschlußstelle zur A14 ist in 5 Fahrminuten zu erreichen und somit sind alle drei Städte in 30 bis 45 Fahrminuten zu erlangen. Die Burgstraße befindet sich zwischen dem Bahnhof und dem Stadtzentrum. Beides ist...
Büro-/Praxisfläche
Kategorie
Bürofläche
Baujahr
1995
Bezug
ab 01.11.2023
Derzeitige Nutzung
vermietet
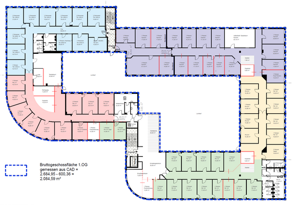
Geschoss
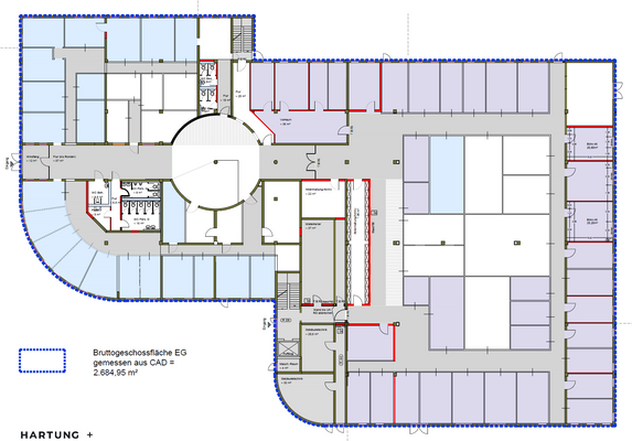
Erdgeschoss
Energie & Heizung
Warum sehe ich diese Anzeige? – Du siehst diese Anzeige basierend auf Ihrer Navigation auf unserer Website und den Suchkriterien, die du verwendet hast.
Wärme
Energieausweistyp
Verbrauchsausweis
Gebäudetyp
Nicht-Wohngebäude
Baujahr laut Energieausweis
2013
Wesentliche Energieträger
Gas
Gültigkeit
09.11.2020 bis 08.11.2030
Endenergieverbrauch (Wärme)
107,00 kWh/(m²·a)
Weitere Energiedaten
Energieträger
Gas
Heizungsart
Zentralheizung
Details
Objektbeschreibung
Das angebotene Objekt umfasst das vollständige EG sowie OG eines sehr gepflegten Wohn- und Geschäftshaus in sehr guter Lage von Döbeln. Die Gewerbeeinheite im EG sowie eine Teilfläche des 1. OG wird ab 01.11.2023 frei und würde zur Neuvermietung oder zur Selbstnutzung zur Verfügung stehen.
Das EG verfügt über 2.082 m², das...
Weitere Informationen
Besichtigungstermine
Termine nach Vereinbarung. Telefonische Kontaktaufnahme bevorzugt.
Stichworte
Serviceleistungen: Hausmeister
Sonstiges: Getrennte Damen- und Herren-WCs
Anbieter der Immobilie
MS Immobilien und Verwaltungs GmbH
Hauptstraße 119, 04736 Waldheim
Online-ID: 2aw825s
Referenznummer: 557-5
Finde Angebote wie dieses
Hier geht es zu unserem Impressum, den Allgemeinen Geschäftsbedingungen, den Hinweisen zum Datenschutz und nutzungsbasierter Online-Werbung.