

Jutt & Disse Immobilien e.K.
Herr/Frau Björn Disse
072 ···
Nr. anzeigenPreise & Kosten
Provision für Käufer
3,57% inklusive der gesetzlichen MwSt. bezogen auf den Kaufpreis nach notariellem Vertragsabschluss.
Lage
Das Mehrfamilienhaus befindet sich in zentraler, etwas erhöhter Lage von Baden-Baden. In wenigen Gehminuten ist das Stadt-Zentrum mit allen wichtigen Einrichtungen des täglichen Lebens, wie Ärzte, Apotheken und Geschäfte zu erreichen. Wer nicht so gut zu Fuß ist und auf Autofahrten verzichten möchte, nimmt den Bus, der in der...
Das Haus
Kategorie
Mehrfamilienhaus
Baujahr
1928
Derzeitige Nutzung
vermietet
Energie & Heizung
Warum sehe ich diese Anzeige? – Du siehst diese Anzeige basierend auf Ihrer Navigation auf unserer Website und den Suchkriterien, die du verwendet hast.
Energieausweistyp
Bedarfsausweis
Gebäudetyp
Wohngebäude
Baujahr laut Energieausweis
2003
Wesentliche Energieträger
GAS
Gültigkeit
bis 15.03.2031
Effizienzklasse
D
Endenergiebedarf
117,70 kWh/(m²·a)
Weitere Energiedaten
Energieträger
Gas
Heizungsart
Zentralheizung
Details
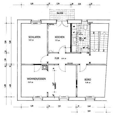
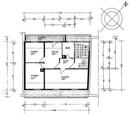
Objektbeschreibung
Gepflegtes Stadthaus mit 4 Wohneinheiten auf insgesamt 305 m² Wohnfläche und einer Garage in Baden-Baden.
Erstmalig erbaut in 1928 auf einem Grundstück mit 250 m² und fortlaufend instandgehalten bietet das Gebäude eine solide Basis als Kapitalanlage.
Bestehend aus 3 Vollgeschossen und ausgebauten Dachgeschoss mit...
Ausstattung
Massive Bauweise als Mittelhaus mit 4 Balkonen, voll unterkellert und Garage im Haus. Überwiegend bebautes Grundstück mit Grünfläche am Hang hinter dem Haus.
Gaszentralheizung aus dem Jahr 2003, weiße Kunststoffrahmenfenster mit 2-Isolierverglasung aus dem Jahr 1995.
1985 wurde das Dach komplett neu eingedeckt.
Im...
Preisinformation
1 Garagenstellplatz
Weitere Informationen
Sonstiges
Die vorstehenden, freibleibenden Angaben sind nach bestem Wissen erstellt. Da sie jedoch auf Auskünften und Unterlagen Dritter basieren, können wir für deren Richtigkeit und Vollständigkeit keine Gewähr übernehmen.
Stichworte
vermietbare Fläche: 298,00 m², Anzahl der Schlafzimmer: 4, Anzahl Balkone: 4...
Anbieter der Immobilie
Jutt & Disse Immobilien e.K.
Im Weingarten 22, 76547 Sinzheim

Online-ID: 2azw35d
Referenznummer: 3452
Finde Angebote wie dieses
Hier geht es zu unserem Impressum, den Allgemeinen Geschäftsbedingungen, den Hinweisen zum Datenschutz und nutzungsbasierter Online-Werbung.