
Bank 1 Saar Immobilien GmbH
Herr Marco Nawrocki
068 ···
Nr. anzeigenPreise & Kosten
Provision für Käufer
3,57 % inkl. MwSt.
Lage
Das Haus befindet sich in ruhiger Nebenstraßenlage in Oberbexbach mit guter Anbindung an das Stadtzentrum sowie die umliegenden Städte Bexbach, Neunkirchen und Homburg. Eine Autobahnanbindung ist ebenfalls schnell erreichbar, sodass auch Pendler von der guten Lage profitieren. Einkaufsmöglichkeiten, Schulen und öffentliche...
Das Renditeobjekt
Kategorie
Mehrfamilienhaus
Baujahr
1972
Bezug
01.01.2026
Energie & Heizung
Warum sehe ich diese Anzeige? – Du siehst diese Anzeige basierend auf Ihrer Navigation auf unserer Website und den Suchkriterien, die du verwendet hast.
Energieausweistyp
Bedarfsausweis
Gebäudetyp
Wohngebäude
Baujahr laut Energieausweis
1972
Wesentliche Energieträger
Gas
Gültigkeit
19.03.2025 bis 18.03.2035
Effizienzklasse
D
Endenergiebedarf
114,70 kWh/(m²·a)
Weitere Energiedaten
Energieträger
Gas
Heizungsart
Zentralheizung
Details
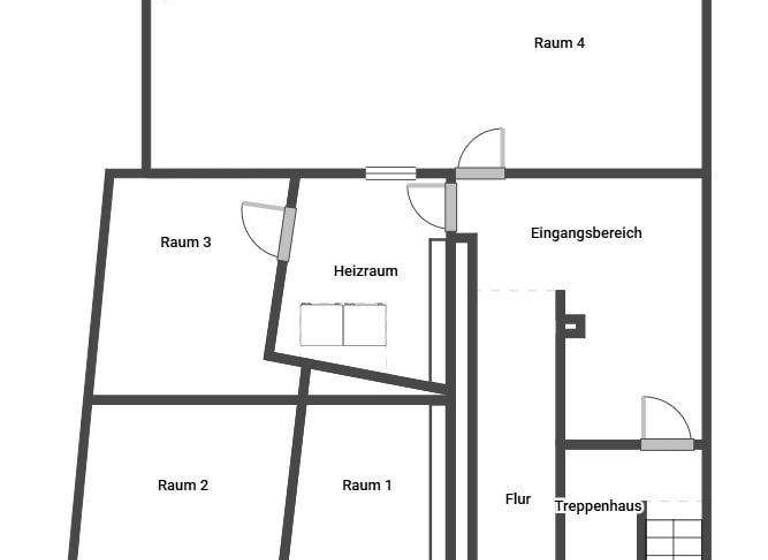
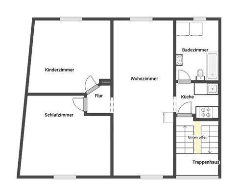
Objektbeschreibung
Dieses gepflegte und modernisierte 3-Familienhaus in Oberbexbach bietet eine hervorragende Gelegenheit für Kapitalanleger sowie für Eigennutzer, die das Erdgeschoss beziehen und die Finanzierung über Mieteinnahmen absichern möchten. Das Haus wurde 1972 erbaut, der Keller stammt aus ca. 1850. Durch umfangreiche Sanierungen...
Ausstattung
Individuelle Ausstattungsmerkmale:
- Garage/ Stellplatz
Ausstattung & Modernisierungen.
- Gaszentralheizung aus 1998, Heizkörper erneuert 2009-2012
- Dach und Dämmung 2012 erneuert (Satteldach mit Ziegeldeckung)
- Fenster und Dachfenster (Kunststoff 2-fach verglast mit Rollläden, ca. 2012)
-...
Preisinformation
Soll-Mieteinnahmen pro Jahr: 19.000,00 EUR
Ist-Mieteinnahmen pro Jahr: 12.408,00 EUR
Weitere Informationen
Sonstiges
Fragen Sie nach einer Finanzierung durch unsere Hausbank die Bank1Saar - Sie bekommen sehr kurzfristig einen persönlichen Termin für eine Baufinanzierungsberatung. Dank regionaler Fachexpertise können wir schnell ein attraktives Angebot unterbreiten und Ihren Traum vom Haus kompetent...
Dokumente
Anbieter der Immobilie
Bank 1 Saar Immobilien GmbH
Kaiserstr. 17-19, 66111 Saarbrücken
Online-ID: 2m3cg5n
Referenznummer: 007195
Finde Angebote wie dieses
Hier geht es zu unserem Impressum, den Allgemeinen Geschäftsbedingungen, den Hinweisen zum Datenschutz und nutzungsbasierter Online-Werbung.