
DAHLER Mainz c/o Fischtorplatz Immobilien GmbH
Herr Christian Mass
004 ···
Nr. anzeigenPreise & Kosten
Provision für Käufer
5,95% bezogen auf den beurkundeten Kaufpreis inkl. MwSt.
Lage
Budenheim ist eine charmante Gemeinde im Landkreis Mainz-Bingen und idealer Ausgangspunkt für Freunde urbaner Nähe (Mainz, Wiesbaden, Frankfurt) und naturnaher Erholung. Eingebettet zwischen Wäldern und dem Rhein verbindet Budenheim ruhiges Wohnen mit der Nähe zu einer der wirtschaftlich bedeutsamsten Regionen...
Das Haus
Kategorie
Mehrfamilienhaus
Bezug
sofort
Energie & Heizung
Warum sehe ich diese Anzeige? – Du siehst diese Anzeige basierend auf Ihrer Navigation auf unserer Website und den Suchkriterien, die du verwendet hast.
Weitere Energiedaten
Energieträger
Gas
Heizungsart
Etagenheizung
Details
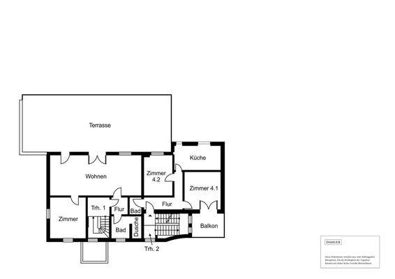
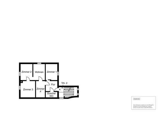
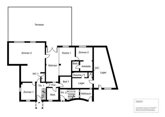
Objektbeschreibung
Dieses große Mehrparteienhaus an einer der Hauptstraßen Budenheims bietet viel Entwicklungspotenzial. Einst als erfolgreiches Restaurant genutzt, bietet das teilunterkellerte Haus heute eine großzügige 2-geschossige Hauptwohnung zur gewerblichen/wohnlichen Nutzung mit zwei großen Terrassenflächen und einem weiten Blick in den...
Ausstattung
Dieses Mehrparteienhaus, das lange als erfolgreiches Restaurant genutzt wurde, bietet diverse Nutzungsmöglichkeiten. Mit einer Wohnfläche von ca. 185 m², 12 Zimmern und großer Parkplatzfläche (gesondert zu erwerben) direkt am Haus, bietet es viel Entwicklungspotenzial und Raum für Entfaltung von sowohl gewerblichen, als auch...
Weitere Informationen
Stichworte
Nutzfläche: 256,84 m², Anzahl der Schlafzimmer: 6, Anzahl der Badezimmer: 3, Anzahl der separaten WCs: 1, Anzahl Balkone: 2, Anzahl Terrassen: 1, 2 Etagen
Sonstiges/Wohnen: Einliegerwohnung
Anbieter der Immobilie
Online-ID: 2mh5g5z
Referenznummer: DC-MAI-1321
Finde Angebote wie dieses
Hier geht es zu unserem Impressum, den Allgemeinen Geschäftsbedingungen, den Hinweisen zum Datenschutz und nutzungsbasierter Online-Werbung.