LaVilla-Bau GmbH

Herrn Markus Schliffenbacher

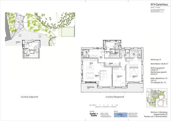
3 Zimmer Dachterrassenwohnung mit großem Balkon und eigenem Zugang

€ 1.096.100
Kaufpreis
132,49 m²
Wohnfläche ca.
3
Zimmer

Der Anbieter dieses Objekts hat gegenüber der AVIV Germany GmbH als Betreiber dieses Online-Marktplatzes erklärt, nicht als Unternehmer im Sinne des § 1 KSchG zu handeln. Die im Verbraucherschutzrecht der Union verankerten Verbraucherrechte (insbesondere Informationspflichten und Rücktritts- bzw. Widerrufsrechte) finden auf den Vertrag zwischen dem Anbieter des Objekts und Ihnen (dem Interessenten) keine Anwendung.

Provisionsfrei
Gewerblicher Anbieter

Der Anbieter dieses Objekts hat gegenüber der AVIV Germany GmbH als Betreiber dieses Online-Marktplatzes erklärt, als Unternehmer im Sinne des § 1 KSchG zu handeln.

AdresseSieghartstraße 20
85560 Ebersberg 
Auf Karte ansehen

Preise & Kosten

Kaufpreis € 1.096.100 Hausgeld € 400 Preis/m² € 8.273,08 1 Stellplatz € 27.500

Provision für Käufer

provisionsfrei

Lage

Die Kreisstadt Ebersberg hat ca. 12.000 Einwohner und ist rund 30 km südöstlich von München entfernt und ist über die Autobahn A 94 oder die B304 gut zu erreichen.
Das Objekt liegt sehr ruhig im Zentrum von Ebersberg in einem gewachsenen Umfeld.
Es erwartet sie eine gute Infrastruktur mit Grund- und Realschule...

Mehr anzeigen

Die Wohnung

Kategorie

Penthouse

Wohnungslage

1. Geschoss (Dachgeschoss)

Bezug

sofort

Derzeitige Nutzung

frei

  • Bad mit Wanne und Dusche, Gäste-WC
  • Terrasse
  • Ausblick: Fernblick
  • Böden: Estrich, Fliesenboden, Parkett
  • Fenster: Kunststofffenster
  • Zustand: Erstbezug
  • kontrollierte Be- und Entlüftungsanlage
  • Weitere Räume: Kelleranteil, Abstellraum
  • Anschlüsse: Kabelanschluss

Wohnanlage

  • Baujahr: 2025
  • Zustand: Neubau
  • 1 Stellplatz: Tiefgarage

Energie & Heizung

A+
A
B
C
D
E
F
G
H
0 25 50 75 100 125 150 175 200 225 250 +

Energieausweistyp

Bedarfsausweis

Gebäudetyp

Wohngebäude

Baujahr laut Energieausweis

2025

Wesentliche Energieträger

Luft-/Wasser-Wärmepumpe

Gültigkeit

16.05.2025 bis 15.05.2035

Effizienzklasse

A+

Endenergiebedarf

16,40 kWh/(m²·a)

Weitere Energiedaten

Energieträger

Solar

Haustyp

KfW 55

Heizungsart

Fußbodenheizung, Luft-/Wasser-Wärmepumpe, Zentralheizung

Details

Objektbeschreibung

Objektbeschreibung
Das Wohnbauprojekt nach dem Energiesparstandard „Effizienzhaus 55“ liegt in fußläufiger Entfernung zum Marktplatz, S-Bahnhof sowie dem Einkaufszentrum eEinZ in ruhiger Lage mit altem Baumbestand in gewachsener Umgebung.

Um die Ressourcen zu schonen und dem Klimaschutz Rechnung zu tragen, wurde das...

Mehr anzeigen

Weitere Informationen

3 Zimmer Dachterrassenwohnung
In begehrter Lage von Ebersberg erwartet Sie diese außergewöhnliche 3-Zimmer-Wohnung mit echtem Penthouse-Charakter.

Als einzige Einheit im obersten Stockwerk eines kleinen, modernen Mehrfamilienhauses mit insgesamt nur drei Wohnunngen und eigenem repräsentativen Eingang, genießen Sie...

Mehr anzeigen

Dokumente

file_pdfGH_Energieausweis_250516.pdfangle_right

Anbieter der Immobilie

LaVilla-Bau GmbH

Altstadtpassage 2, 85560 Ebersberg

user

Herrn Markus Schliffenbacher

Dein Ansprechpartner

Anbieter-Website Anbieter-Profil Anbieter-Impressum

Online-ID: 2b43r5q

Referenznummer: 1902-14

Finde Angebote wie dieses

imageimageimage

Hier geht es zu unserem Impressum, den Allgemeinen Geschäftsbedingungen, den Hinweisen zum Datenschutz und nutzungsbasierter Online-Werbung.