
Joos Immobilien
Herr Michael Wulf
016 ···
Nr. anzeigenPreise & Kosten
Provision für Käufer
provisionsfrei
Lage
Die Lage ist ideal, da das Stadtzentrum durch eine eine gute Verkehrsanbindung underreichbar mit ÖPNV. Hier fühlt man sich sofort wohl.
Das Grundstück am Stadtrand ist ruhig und naturnah gelegen. In der Nähe, gibt es Supermärkte, Bankautomaten, Apotheken, U-Bahn/ S-Bahn-Stationen, Schulen und Kita´s und Ärzte. Die Nähe...
Das Haus
Kategorie
Einfamilienhaus
Geschosse
2 Geschosse
Baujahr
2026
Bezug
2026
Energie & Heizung
Warum sehe ich diese Anzeige? – Du siehst diese Anzeige basierend auf Ihrer Navigation auf unserer Website und den Suchkriterien, die du verwendet hast.
Energieausweistyp
Bedarfsausweis
Gebäudetyp
Wohngebäude
Baujahr laut Energieausweis
2025
Wesentliche Energieträger
Strom
Gültigkeit
01.08.2023 bis 01.08.2033
Effizienzklasse
A+
Endenergiebedarf
18,00 kWh/(m²·a)
Weitere Energiedaten
Haustyp
Fertighaus, KfW 40
Energieträger
Solar
Heizungsart
Fußbodenheizung, Luft-/Wasser-Wärmepumpe
Details
Objektbeschreibung
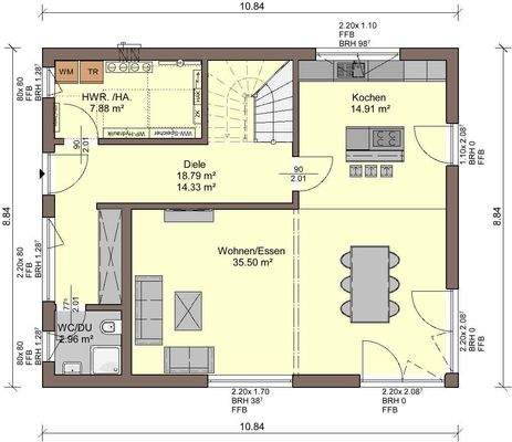
Bei dem angebotenen Objekt handelt es sich um einen Neubau mit einem Beispie-Grundriss. Entsprechend Ihrer Wünsche und Vorstellungen passen wir natürlich Ihren Grundriss an. Alle Details zu Ihren Wünschen, der Bauweise und Qualitäten, besprechen wir gerne in einem persönlichen Treffen. Im Standard sind unsere Häuser mit...
Ausstattung
Die Austattung Ihres Hauses, ist neben Ihrem Wunsch-Grundriss ebenfalls ein Thema anlässlich unseres ersten Treffens. Ihre Wünsche und Ziele sind Basis unseres Anbebotes und Architekten-Planung für Sie.
Weitere Informationen
Ihr Bau-Partner
Familie Büdenbender baut Häuser in anspruchsvolle Architektur in robuster schlüsselfertiger Fertigbauweise in höchster Qualität, mit konsequente Energieeffizienz durch die Erzeugung und Nutzung erneuerbarer Energien. Seit mehr als 75 Jahen tragen diese Häuser ist den Namen Büdenbender. Deutsches...
Dokumente
Anbieter der Immobilie
Joos Immobilien
Eibenweg 2, 38442 Wolfsburg
Online-ID: 2b4fh5e
Referenznummer: MW-HRO-Kie-230823
Finde Angebote wie dieses
Hier geht es zu unserem Impressum, den Allgemeinen Geschäftsbedingungen, den Hinweisen zum Datenschutz und nutzungsbasierter Online-Werbung.