Version: 8.25.1Navigation überspringen
739.000 €
4 Zimmer  •  100 m²
Immowelt logo

Reihenmittelhaus zum Kauf - Erstbezug
739000 €
7.390 €/m²
4 Zimmer  •  100 m²

Studie: Reihenhäuser in attraktiver Lage von Götzis

Kornfeld 43 - Wohnen mit Garten und Lebensqualität

PROJEKTSTUDIE - MODERNES WOHNEN MIT GARTEN

Bei dem dargestellten Projekt handelt es sich derzeit um eine Studie. Die dargestellten Grundrisse sowie Visualisierungen dienen ausschließlich als Symbolbilder zur Veranschaulichung eines möglichen Bauprojektes und können sich im Zuge der weiteren Planung noch ändern.

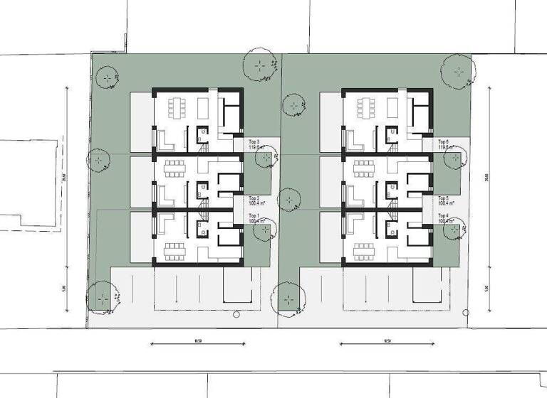
Die Studie sieht die Errichtung von insgesamt sechs Reihenhäusern vor, angeordnet in zwei Reihen mit jeweils drei Einheiten.

Die geplanten Reihenhäuser bieten Wohnflächen zwischen ca. 100 m² und 119 m² und verfügen über private Gärten in unterschiedlichen Größen. Das Konzept richtet sich insbesondere an Familien und Menschen mit Platzbedarf, die ein modernes Zuhause mit eigenem Garten suchen.

In der aktuellen Planung sind Carport-Stellplätze geplant.

Die Häuser können in verschiedenen Ausbaustufen übergeben werden. (Von Rohbau bis zu schlüsselfertigen Einheiten)

Der Kaufpreis für ein schlüsselfertiges Haus beginnt in der Studie mit € 739.000,- und kann sich je nach Ausbaustufe und Ausstattung ändern.

Richtpreise laut aktueller Projektstudie:

* Top 2 & Top 5 mit ca. 100,4 m² Wohnfläche, ca. 15 m² Terrasse, zw. 61 - 70 m² Gartenflächen: € 739.000,-
* Top 1 & Top 4 mit ca. 100,4 m² Wohnfläche, ca. 15 m² Terrasse, zw. 66 - 75 m² Gartenflächen: € 759.000,-
* Top 3 & Top 6 mit ca. 119,6 m² Wohnfläche, ca. 15 m² Terrasse, 161 m² Gartenflächen: € 859.000,-

Carportstellplatz: € 23.000,- pro Platz

Die angegebenen Preise verstehen sich als Richtpreise und können je nach Ausgestaltung, Baufortschritt sowie individueller Ausstattung variieren.

Ihrerseits wird das Grundstück erworben, die konkrete Ausführung und mögliche Ausbaustufen können anschließend in einem persönlichen Termin gemeinsam abgestimmt werden.

Bei Interesse, freuen wir uns über Ihre Anfrage.

Noch nichts gefunden? Wir informieren Sie über geeignete Immobilienangebote noch vor allen anderen.
Legen Sie jetzt kostenlos Ihren individuellen Suchagenten unter folgendem Link an. Wir schicken Ihnen passende Immobilien exklusiv vorab zu.
Suchagent anlegen [https://rimo-immobilien.service.immo/registrieren/de]

Wir weisen darauf hin, dass zwischen dem Vermittler und dem zu vermittelnden Dritten ein familiäres oder wirtschaftliches Naheverhältnis besteht.

Der Vermittler ist als Doppelmakler tätig.

Infrastruktur / Entfernungen

Gesundheit
Arzt <1.500m
Apotheke <1.500m
Krankenhaus <5.500m

Kinder & Schulen
Schule <1.500m
Kindergarten <1.000m
Höhere Schule <1.500m

Nahversorgung
Supermarkt <1.000m
Bäckerei <1.000m
Einkaufszentrum <6.500m

Sonstige
Bank <1.000m
Geldautomat <1.000m
Post <1.500m
Polizei <1.500m

Verkehr
Bus <500m
Bahnhof <1.500m
Autobahnanschluss <1.000m
Flughafen <8.500m

Angaben Entfernung Luftlinie / Quelle: OpenStreetMap

Merkmale

  • Terrasse

Grundrisse

Grundrisse
1 / 2

Realisiere Dein Projekt

Bausubstanz und Energie

Möchtest du Details zum Energieverbrauch?info_energy_calculation-icon
  • Zustand der ImmobilieNeubau, Erstbezug
Immowelt logo

Preisdetails

Kaufpreis
739000 €
7.390 €/m²
Provision für Käufer
Bitte beachte, das Angebot kann bei Vertragsabschluss die Zahlung einer Provision beinhalten. Weitere Informationen erhältst Du vom Anbieter.

Lage

address-icon
Götzis (6840)
In ruhiger und familienfreundlicher Lage von Götzis, Kornfeld 43, ist im Rahmen einer Studie die Errichtung moderner Reihenhäuser geplant. Die Umgebung überzeugt durch eine angenehme Wohnatmosphäre, viel Grün sowie eine ausgezeichnete Infrastruktur - ideal für Familien, Paare und all jene, die sich den Traum vom eigenen Zuhause erfüllen möchten.

Die Marktgemeinde Götzis zählt zu den beliebtesten Wohnorten im Vorarlberger Rheintal und bietet eine perfekte Kombination aus naturnahem Wohnen und hervorragender Anbindung. Zahlreiche Freizeitmöglichkeiten befinden sich in unmittelbarer Umgebung: Spazier- und Radwege, Naherholungsgebiete sowie vielfältige Sportmöglichkeiten sorgen für hohe Lebensqualität.

Auch im Alltag profitieren zukünftige Bewohner von kurzen Wegen. Einkaufsmöglichkeiten, Apotheke, Ärzte, Schulen und Kinderbetreuungseinrichtungen befinden sich in komfortabler Nähe. Die gute Anbindung an den öffentlichen Verkehr sowie die schnelle Erreichbarkeit der umliegenden Gemeinden und Städte machen diesen Standort besonders attraktiv.

Hier entsteht ein Wohnumfeld, das Ruhe, Natur und Alltagstauglichkeit ideal miteinander verbindet.

Weitere Informationen

Stichworte Anzahl der Badezimmer: 1, Anzahl der separaten WCs: 1, Anzahl Terrassen: 1, Balkon-Terrassen-Fläche: 15,00 m², Bundesland: Vorarlberg

Weitere Services

Lust auf eine Besichtigung?
Eine Frage zur Immobilie?
Nachricht hinzufügen
Mit der Nutzung der oben angegebenen Telefonnummer oder durch Klicken auf „Kontaktieren“ akzeptierst Du die Allgemeinen Nutzungsbedingungen, denen Du jederzeit widersprechen kannst. Weitere Informationen zum Datenschutz

Über den Anbieter

Marktplatz 7, 6800 FELDKIRCH
partner badge
Partnerschaft
Herr Daniel MarteDein Kontakt

Weitere Unterlagen

Online-ID: 26CYGG6UKFC9
Referenznummer: OBGC202603031449198394dd8cac63d
Rimo | Immobilien GmbH
Rimo | Immobilien GmbH
Bewertung: 4,6 von 5 Sternen
Nachricht hinzufügen
Mit der Nutzung der oben angegebenen Telefonnummer oder durch Klicken auf „Kontaktieren“ akzeptierst Du die Allgemeinen Nutzungsbedingungen, denen Du jederzeit widersprechen kannst. Weitere Informationen zum Datenschutz
Wie zufrieden bist du mit dieser Seite (nicht mit der Immobilie selbst)?