
RUHR REAL GmbH
Herr Frederic Jeschke
+49 ···
Nr. anzeigenPreise & Kosten
zzgl. Nebenkosten
Provision für Mieter
provisionsfrei
Warum sehe ich diese Anzeige? – Du siehst diese Anzeige basierend auf Ihrer Navigation auf unserer Website und den Suchkriterien, die du verwendet hast.
Lage
Die Bürofläche liegt im Bochumer Gewerbegebiet Rombacher Hütte. Durch seine verkehrsgünstige Lage an der A40, der A43, der A44 und der A45 lässt sich das Objekt gut mit dem Auto erreichen. Eine Anbindung an das ÖPNV-Netz befindet sich direkt vor dem Objekt.
Hotels der Umgebung: Hotel Haus Vocke, Art Hotel Tucholsky...
Büro-/Praxisfläche
Kategorie
Bürofläche
Baujahr
1991
Bezug
nach Vereinbarung
Energie & Heizung
Warum sehe ich diese Anzeige? – Du siehst diese Anzeige basierend auf Ihrer Navigation auf unserer Website und den Suchkriterien, die du verwendet hast.
Wärme
Strom
Energieausweistyp
Bedarfsausweis
Gebäudetyp
Nicht-Wohngebäude
Baujahr laut Energieausweis
2011
Wesentliche Energieträger
Gas
Gültigkeit
15.06.2009 bis 15.06.2019
Endenergiebedarf (Wärme)
67,80 kWh/(m²·a)
Endenergiebedarf (Strom)
55,70 kWh/(m²·a)
Weitere Energiedaten
Energieträger
Gas
Heizungsart
Zentralheizung
Details
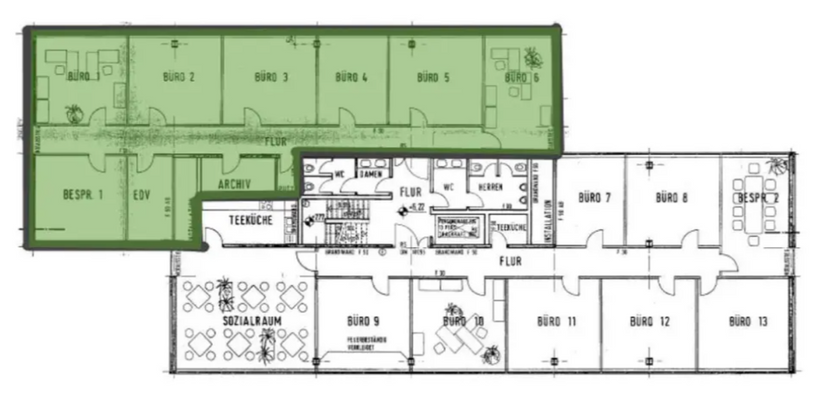
Objektbeschreibung
Das markante Bürogebäude wurde im Jahre 1991 erbaut und im Jahre 2011 umfangreich modernisiert. Der Eingangsbereich, sowie dessen Fensterfronten sorgen für einen einladenden Arbeitsbereich. Dem Mieter stehen hauseigene Stellplätze vor dem Objekt zur Anmietung zur Verfügung. Ferner bietet das Objekt dem Nutzer eine...
Ausstattung
. Sonnenschutz: innenliegend, manuell
. Bodenbelag: nach Mieterwunsch
. Verkabelung: CAT-5 vom Vormieter
. Kabelführung: Fensterbankkabelkanäle
. Beleuchtung: arbeitsplatzgerechte Deckenleuchten
. Teeküche: Anschlüsse vorhanden
. Barrierearm: Ja, ebenerdiger Zugang
. Heizungsart...
Preisinformation
Nettokaltmiete: 7,50 EUR
Weitere Informationen
Sonstiges
Es gelten ausschließlich unsere AGB (www.ruhr-real.de/agb). Wir möchten Sie darauf hinweisen, dass die Angaben ausschließlich auf den uns vom Eigentümer übermittelten Unterlagen und Informationen basieren. Für Richtigkeit und Vollständigkeit übernehmen wir keine Gewähr. Zwischenvermietung...
Anbieter der Immobilie

RUHR REAL GmbH
Holsterhauser Platz 2, 45147 Essen
Online-ID: 2bd2552
Referenznummer: 321/E2
Finde Angebote wie dieses
Hier geht es zu unserem Impressum, den Allgemeinen Geschäftsbedingungen, den Hinweisen zum Datenschutz und nutzungsbasierter Online-Werbung.