Version: 8.22.4Navigation überspringen
734 €
1,5 Zimmer  •  EG
Immowelt logo

Wohnung zur Miete
734.28 €
Nettokaltmiete
1,5 Zimmer  •  EG

Schöne 1,5-Zimmer Wohnung mit Terrasse und Garten (Beispielfotos)

Angezeigt sind Beispielfotos von einer ähnlichen Wohnung im Haus!

Highlights

*
Modernes Wohnen in Stammersdorf

*
Nachhaltige Holz-Hybrid-Bauweise

*
Niedrigenergiehaus mit hochwertiger Ausstattung

*
Großzügige Freiflächen (Balkon oder Loggia)

*
Tiefgarage mit 25 Stellplätzen im Haus

*
Moderne Holzelemente wie Sichtdecken & Holzfenster

*
Durchdachte Grundrisse

Objektbeschreibung

Ab sofort gelangt zur Vermietung eine schöne 1,5-Zimmer Wohnung in urbaner Atmosphäre.

Das Gebäude wurde in innovativer Holz-Hybrid-Bauweise errichtet und erfüllt höchste ökologische und energetische Standards. Es handelt sich um ein Niedrigenergiehaus, das durch seine angenehme Wohnatmosphäre und den besonders hohen Wohlfühlfaktor überzeugt.

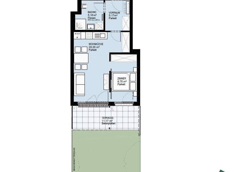
Die helle Wohnung verfügt über einen Vorraum, einen Wohnbereich und ein durch Schiebewände getrenntes Schlafzimmer, ein modernes Badezimmer mit Dusche, WC und Waschmaschinenanschluss, sowie über eine Terrasse und einen großzügigen Garten.  

Die hochwertige Ausstattung umfasst sichtbare Holzelemente, Holzfenster mit 3-fach-Verglasung und elektrischer Außenbeschattung, Echtholz-Parkettböden sowie stilvolle Fliesen in den Nassräumen.

 

Infrastruktur

Die Lage in der Stammersdorfer Straße 190 überzeugt durch ihre ideale Kombination aus Ruhe und urbaner Anbindung. In unmittelbarer Nähe befinden sich Einkaufsmöglichkeiten des täglichen Bedarfs, gemütliche Cafés und Restaurants sowie zahlreiche Freizeit- und Erholungsmöglichkeiten. Der Marchfeldkanal und die Weinberge von Stammersdorf laden zu Spaziergängen und sportlichen Aktivitäten im Grünen ein.

Die öffentliche Anbindung ist super: Die Straßenbahnlinie 31 bringt Sie direkt in die Wiener Innenstadt, und auch Busverbindungen Richtung Floridsdorf und Leopoldau befinden sich in Gehweite.

Der Immobilienmakler erklärt, dass er - entgegen dem in der Immobilienwirtschaft üblichen Geschäftsgebrauch des Doppelmaklers - einseitig nur für den Vermieter tätig ist.

Infrastruktur / Entfernungen

Gesundheit
Arzt <1.000m
Apotheke <1.000m
Klinik <4.000m
Krankenhaus <1.000m

Kinder & Schulen
Schule <1.000m
Kindergarten <1.000m
Universität <1.000m
Höhere Schule <5.000m

Nahversorgung
Supermarkt <500m
Bäckerei <1.000m
Einkaufszentrum <3.000m

Sonstige
Geldautomat <1.000m
Bank <1.000m
Post <3.000m
Polizei <1.000m

Verkehr
Bus <500m
U-Bahn <3.000m
Straßenbahn <1.000m
Bahnhof <3.000m
Autobahnanschluss <4.000m

Angaben Entfernung Luftlinie / Quelle: OpenStreetMap

Merkmale

  • Bezug: ab sofort
  • Erdgeschoss
  • Einbauküche
  • Personenaufzug
  • Garage
  • Garten
  • Terrasse
  • Bad mit Dusche

Grundrisse

Grundrisse
1 / 1

Realisiere Dein Projekt

Bausubstanz und Energie

Heizwärmebedarf (HWB)

B

Gesamtenergieeffizienz (fGEE)

A
  • Zustand der ImmobilieNeubau
  • HeizungsartFußbodenheizung
  • EnergieträgerFernwärme
Immowelt logo

Mietkosten

Gesamtmiete
899 €
Nettokaltmiete
18,69 €/m²
734,28 €
Betriebskosten
82,99 €
Kaution
3 Bruttomonatsmieten
Weitere Preisinformationen
1 Garagenstellplatz
Nettokaltmiete: 734,28 EUR

Lage

address-icon
Wien (1210)
Stammersdorf

Weitere Informationen

Stichworte Tiefgarage vorhanden, Fahrradraum, Nutzfläche: 39,28 m², Anzahl der Badezimmer: 1, Anzahl der separaten WCs: 1, Anzahl Terrassen: 1, Balkon-Terrassen-Fläche: 11,17 m², Bundesland: Wien

Weitere Services

Lust auf eine Besichtigung?
Eine Frage zur Immobilie?
Nachricht hinzufügen
Mit der Nutzung der oben angegebenen Telefonnummer oder durch Klicken auf „Kontaktieren“ akzeptierst Du die Allgemeinen Nutzungsbedingungen, denen Du jederzeit widersprechen kannst. Weitere Informationen zum Datenschutz

Über den Anbieter

Marc-Aurel-Straße 6/6, 1010 WIEN
partner badge
3 Jahre Partnerschaft
Frau Veronika PetrosyanDein Kontakt
Online-ID: 2mg2l5t
Referenznummer: OBGC202512221137428171ea90340f6
EDEX Immobilien GmbH
EDEX Immobilien GmbH
Bewertung: 5 von 5 Sternen
Nachricht hinzufügen
Mit der Nutzung der oben angegebenen Telefonnummer oder durch Klicken auf „Kontaktieren“ akzeptierst Du die Allgemeinen Nutzungsbedingungen, denen Du jederzeit widersprechen kannst. Weitere Informationen zum Datenschutz
Wie zufrieden bist du mit dieser Seite (nicht mit der Immobilie selbst)?