
Gemeinnützige Baugenossenschaft Bergedorf-Bille eG
Frau Merve Felsberg
040 ···
Nr. anzeigenPreise & Kosten
in Warmmiete enthalten
Kaution
67.000,00
Provision für Mieter
provisionsfrei
Warum sehe ich diese Anzeige? – Du siehst diese Anzeige basierend auf Ihrer Navigation auf unserer Website und den Suchkriterien, die du verwendet hast.
Lage
Die Hafencity ist Europas größtes innerstädtisches Stadtentwicklungsvorhaben. Entlang der Elbe entsteht auf einer Fläche von 157 ha Hamburgs neuester Stadtteil. Mit der Hafencity schafft Hamburg ein lebendiges Quartier, mit maritimen Flair direkt an der Elbe. Ein Zentrum für alle Arten der Nutzung. Ob Bildung, Arbeit...
Gastronomie/Hotel
Kategorie
Restaurant
Baujahr
2025
Bezug
nach Vereinbarung
Energie & Heizung
Warum sehe ich diese Anzeige? – Du siehst diese Anzeige basierend auf Ihrer Navigation auf unserer Website und den Suchkriterien, die du verwendet hast.
Wärme
Energieausweistyp
Bedarfsausweis
Gebäudetyp
Nicht-Wohngebäude
Baujahr laut Energieausweis
2025
Wesentliche Energieträger
FERN
Gültigkeit
seit 20.11.2015
Endenergiebedarf (Wärme)
17,20 kWh/(m²·a)
Weitere Energiedaten
Energieträger
Fernwärme
Details
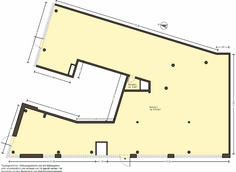
Objektbeschreibung
Der Strandkai markiert gemeinsam mit der Elbphilharmonie von den Landungsbrücken aus das unverwechselbare Gesicht der HafenCity zur Elbe. Insgesamt entstehen in dem neuen Quartier fast 500 Wohneinheiten. In den Erdgeschossen entstehen Kulturnutzungen sowie Räume zur Gastronomie- und Gewerbenutzung. Während die vorderen 93 m...
Ausstattung
Die Fläche ist von Grund auf durchdacht und für die Nutzung als Gastronomiefläche prädestiniert. Die Flächenaufteilung lässt sich nach Ihren Anforderungen und Wünschen weitgehend frei gestalten. Der zentrale Bewirtungsraum mit einem großzügigen Innenbereich, sowie dem großen Außenbereich bilden das Herzstück der Immobilie...
Preisinformation
Nettokaltmiete: 14.641,00 EUR
Weitere Informationen
Stichworte
Wohnfläche: 490,49 m², Nutzfläche: 490,49 m², Gesamtfläche: 490,49 m², vermietbare Fläche: 490,49 m², Bürofläche: 490,49 m²
Anbieter der Immobilie

Gemeinnützige Baugenossenschaft Bergedorf-Bille eG
Bergedorfer Straße 118-122, 21029 Hamburg
Online-ID: 2ln935y
Referenznummer: 3216/0001/0001
Finde Angebote wie dieses
Hier geht es zu unserem Impressum, den Allgemeinen Geschäftsbedingungen, den Hinweisen zum Datenschutz und nutzungsbasierter Online-Werbung.