Version: 8.25.1Navigation überspringen
Debeka Bausparkasse AG
129.000 €
6 Zimmer  •  181,6 m²  •  2.599 m² Grundstück

Einfamilienhaus zum Kauf
129000 €
710 €/m²
6 Zimmer  •  181,6 m²  •  2.599 m² Grundstück

Großes Bauernhaus für Pferdeliebhaber in Rumpshagen

Die um ca. 1900 erbaute Doppelhaushälfte, auf einem knapp 2600 m² großen Grundstück, bietet viel Platz für die ganze Familie und tierische Familienmitglieder.
Gelegen in einer malerischen Umgebung, genießen Sie hier Ruhe und Natur pur.

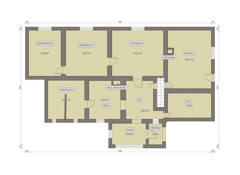
Das großzügige Erdgeschoss bietet eine durchdachte Raumaufteilung mit vielseitigen Nutzungsmöglichkeiten.
Der von der Hofseite zugängliche Vorflur führt in den zentral gelegenen Flur, von dem Küche, Wohnzimmer, Badezimmer und das Obergeschoss zu erreichen sind.
Die Küche gewährt direkten Zugang zur praktischen Speisekammer.
Das Badezimmer ist funktional gestaltet und enthält Platz für eine komfortable Ausgestaltung.
Das Wohnzimmer überzeugt durch seine angenehme Größe und bietet viel Raum für gemütliche Stunden.
Zwei Schlafzimmer sorgen für erholsamen Schlaf und können je nach Bedarf auch als Arbeits- oder Gästezimmer genutzt werden.
Ein separater Heizungsraum vervollständigt das Raumangebot und bietet zahlreiche Abstellmöglichkeiten.

Das Obergeschoss dieser Immobilie besticht durch ein großzügiges Wohngefühl.
Über eine Treppe im Erdgeschoss gelegenen Flur gelangt man in den Vorraum, der Zugang zu einem möglichen Badezimmer und dem großen Wohnzimmer bietet.
Das Wohnzimmer bildet das Herzstück dieser Etage. Mit seiner einladenden Atmosphäre und dem Zugang zum ausgebauten Spitzboden bietet es vielseitige Nutzungsmöglichkeiten - sei es als zusätzlicher Wohnraum, Arbeitsbereich oder gemütlicher Rückzugsort.
Ein weiteres Kinderzimmer und der ausgebaute Spitzboden sorgen für zusätzlichen Wohnkomfort und können flexibel als Schlafzimmer, Gästezimmer oder Büro genutzt werden.

Die großzügigen Räume bieten erhebliches Potenzial zur individuellen Gestaltung.

Vereinbaren Sie noch heute einen Besichtigungstermin und entdecken Sie die zahlreichen Möglichkeiten.

Merkmale

  • Bezug: sofort
  • 2.599 m² Grundstück
Highlights des Hauses:

- knapp 182 m² Wohnfläche verteilen sich auf sechs Zimmer und drei Etagen.

- zwei vielseitig nutzbare Nebengebäude mit Pferdeboxen

- sehr großes Grundstück

- ruhige und idyllische Umgebung, nicht weit von der Müritz entfernt

Grundrisse

Grundrisse
1 / 3

Realisiere Dein Projekt

Bausubstanz und Energie

Energieausweis

G
  • Baujahr1900
  • Zustand der ImmobilieAltbau (bis 1945)
  • HeizungsartZentralheizung
  • EnergieträgerÖl

Preisdetails

Kaufpreis
129000 €
710,35 €/m²
Provision für Käufer
3,57% inkl. MwSt.
Geschätzte Gesamtkosten
143.925 €1
Kaufpreis
129.000 €
Notarkosten (1,5%)
1.935 €
Grunderwerbsteuer (6%)
7.740 €
Provision für Käufer (3,57%)
4.605 €
Grundbucheintrag (0,5%)
645 €
1Der angezeigte Wert ist eine automatisch berechnete Schätzung von immowelt.
2Bei den Angaben handelt es sich um ortsübliche Werte. Individuelle Kosten können abweichen.

Lage

address-icon
RumpshagenAnkershagen (17219)
Der Anbieter hat die genaue Adresse nicht freigegeben
Rumpshagen ist ein idyllischer Ortsteil der Gemeinde Ankershagen im Landkreis Mecklenburgische Seenplatte, Mecklenburg-Vorpommern.
Gelegen inmitten der reizvollen Landschaft des Müritz-Nationalparks, bietet Rumpshagen eine harmonische Verbindung aus Natur und Kultur.

Die Umgebung von Rumpshagen ist geprägt von weitläufigen Wäldern, klaren Seen und sanften Hügeln, die zu vielfältigen Freizeitaktivitäten wie Wandern, Radfahren, Reiten und Wassersport einladen.
Durch die Nähe zur Stadt Prenzlin sind zudem Einkaufsmöglichkeiten, Schulen und medizinische Versorgungseinrichtungen schnell erreichbar.

Insgesamt bietet Rumpshagen eine hohe Lebensqualität für Naturliebhaber und Ruhesuchende, die dennoch nicht auf die Annehmlichkeiten einer guten Infrastruktur verzichten möchten.

Weitere Informationen

Sonstiges Die genannten Informationen beruhen auf den Angaben des Verkäufers. Für die Richtigkeit und Vollständigkeit der Angaben wird keine Gewähr oder Haftung übernommen.

Seit dem 25. Mai 2018 gilt in Deutschland die EU-Datenschutz-Grundverordnung (DS-GVO). Sie regelt, wie private Unternehmen und öffentliche Stellen personenbezogene Daten verarbeiten dürfen. Neben dem freien Datenverkehr innerhalb der Europäischen Union steht der Schutz der personenbezogenen Daten im Vordergrund.
Weitere Angaben zum Umgang mit personenbezogenen Daten sowie Rechten finden Sie unter www.debeka.de/datenschutz. Stichworte Anzahl der Schlafzimmer: 4, Anzahl der Badezimmer: 2

Weitere Services

Lust auf eine Besichtigung?
Eine Frage zur Immobilie?
Nachricht hinzufügen
Mit der Nutzung der oben angegebenen Telefonnummer oder durch Klicken auf „Kontaktieren“ akzeptierst Du die Allgemeinen Nutzungsbedingungen, denen Du jederzeit widersprechen kannst. Weitere Informationen zum Datenschutz

Über den Anbieter

Debeka-Platz 2, 56073 Koblenz
partner badge
Partnerschaft
Frau Franziska YansonDein Kontakt
Keine Telefonnummer hinterlegt
Keine Telefonnummer hinterlegt
Online-ID: 25Z1JY7IWJYL
Referenznummer: 1007258#4Fd7ty
Debeka Bausparkasse AG
Debeka Bausparkasse AG
Bewertung: 4,2 von 5 Sternen
Nachricht hinzufügen
Mit der Nutzung der oben angegebenen Telefonnummer oder durch Klicken auf „Kontaktieren“ akzeptierst Du die Allgemeinen Nutzungsbedingungen, denen Du jederzeit widersprechen kannst. Weitere Informationen zum Datenschutz
MediumRectangleTop
MediumRectangleTop
Wie zufrieden bist du mit dieser Seite (nicht mit der Immobilie selbst)?