
Dr. Schäfer Immobilien Management GmbH
061 ···
Nr. anzeigenPreise & Kosten
Provision für Käufer
Bitte beachte, das Angebot kann bei Vertragsabschluss die Zahlung einer Provision beinhalten. Weitere Informationen erhältst Du vom Anbieter.
Lage
1A-Lage
Der staatlich anerkannte Luftkurort am Südhang des Altkönigs gehört mit seinen Stadtteilen Kronberg, Oberhöchstadt und Schönberg zu den bevorzugten Wohn- und Erholungsorten im Taunus. Über die Jahrhunderte hinweg hat sich Kronberg im Taunus als "Stadt im Grünen" unter dem Wahrzeichen der Burg seinen historisch...
Die Wohnung
Wohnungslage
2. Geschoss
Wohnanlage
Energie & Heizung
Warum sehe ich diese Anzeige? – Du siehst diese Anzeige basierend auf Ihrer Navigation auf unserer Website und den Suchkriterien, die du verwendet hast.
Weitere Energiedaten
Heizungsart
Fußbodenheizung
Details
Objektbeschreibung
In den kommenden Monaten werden unmittelbar am Viktoria Park, drei moderne und attraktive Häuser mit 15 überaus großzügigen Wohnungen entstehen, diese verfügen über jeweils eine Loggia/Balkon bzw. eine Dachterrasse oder Terrasse. Die 5 ebenerdigen Wohnungen haben einen eigenen Gartenanteil als Sondernutzungsrecht.
Das...
Ausstattung
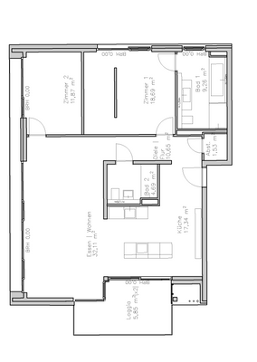
Kurzübersicht:
- Whg. C3
- Erdgeschoss
- 111,90 m² feinste Wohnfläche
- 3 großzügige Räume
- offener Wohn- & Essbereich mit ca. 49 m²
- 2 Bäder mit Waschtisch, Toilette sowie Badewanne und/oder begehbare Dusche
- 1x Loggia
- 1AAA Bestlage von Kronberg im Taunus
- unmittelbare Lage am...
Weitere Informationen
Sonstiges
Nur gelegentlich entsteht eine so attraktive Liegenschaft in einer solch hervorragenden Lage. Die Kaufpreisforderung des Bauherrn beträgt 1.108.000.-- EUR. Für Sie somit die ideale Basis, um sich mit einer Kaufentscheidung, den Traum vom wertbeständigen Wohnen in bester Lage von Kronberg im Taunus erfüllen zu...
Anbieter der Immobilie
Online-ID: 2bg395s
Referenznummer: A1251
Finde Angebote wie dieses
Hier geht es zu unserem Impressum, den Allgemeinen Geschäftsbedingungen, den Hinweisen zum Datenschutz und nutzungsbasierter Online-Werbung.