
FALC Immobilien GmbH & Co. KG
Frau Anastasia Gorbatschow
017 ···
Nr. anzeigenPreise & Kosten
Provision für Käufer
provisionsfrei
Lage
Das Baugrundstück steht in einer Ruhigen Lage in Overath-Immekeppel.
Immekeppel ist ein Ortsteil von Overath, der eingebettet im idyllischen Sülztal liegt. Der Charakter ist geprägt vom Sülztaler Dom und der Hauptstraße, die viele Geschäfte beherbergt und Startpunkt für viele Wanderwege ist.
Overath ist eine...
Das Grundstück
Details
Objektbeschreibung
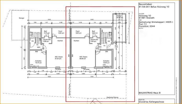
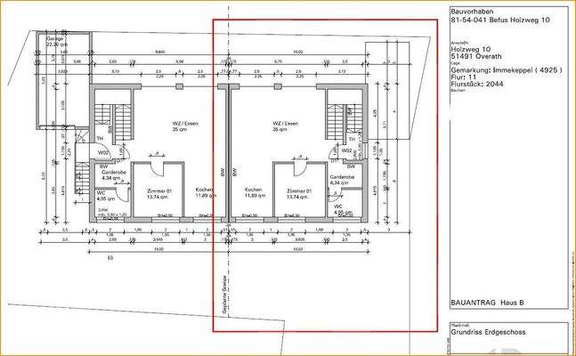
Hier erwerben Sie ein Baugrundstück mit leichter Hanglage mit einer Baugenehmigung für einer Doppelhaushälfte mit Einliegerwohnung und Garage in Immekeppel-Brombach.
Auf einem ca. 1000 m² großen Grundstück in einer gewachsenen Nachbarschaft können Sie hier Ihren Traum vom eigenen Heim realisieren.
Der Bauantrag für...
Ausstattung
Im Erdgeschoss befindet sich auf ca. 69 m² der große Wohn- und Essbereich mit der offen Küche, ein Schlafzimmer und Terrasse, sowie auch das Gäste WC und der Hauswirtschaftsraum der ausreichend Raum bietet für eine Luft-Wasser-Wärmepumpe die auch zur Warmwasseraufbereitung dient.
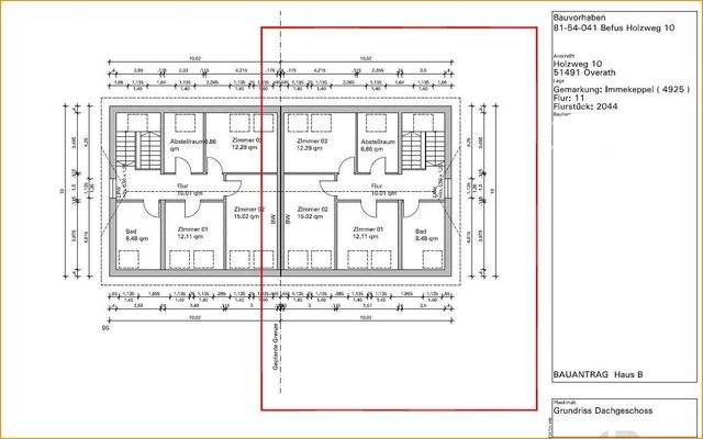
Im Obergeschoss sind auf ca. 64 m² zwei...
Weitere Informationen
Sonstiges
Sofern Sie auf eine besondere Lage, eine beeindruckende Aufteilung und ein sehr gepflegtes Umfeld Wert legen, ist dieses Baugrundstück das ideale für Sie.
Wir bieten nicht nur eine kostenlose Hotline, sondern auch einen Service am Wochenende. Bei Interesse geben Sie bitte immer Ihre vollständigen...
Anbieter der Immobilie
Online-ID: 2bk2b5l
Referenznummer: FALC-VK-33731
Finde Angebote wie dieses
Hier geht es zu unserem Impressum, den Allgemeinen Geschäftsbedingungen, den Hinweisen zum Datenschutz und nutzungsbasierter Online-Werbung.