
Dipl. Ing. Kühne GmbH
Herr Uwe Strietzel
017 ···
Nr. anzeigenPreise & Kosten
Kaution
26.838,00
Provision für Mieter
provisionsfrei
Abschreibung/Anlage
Denkmalschutz-Afa
Warum sehe ich diese Anzeige? – Du siehst diese Anzeige basierend auf Ihrer Navigation auf unserer Website und den Suchkriterien, die du verwendet hast.
Büro-/Praxisfläche
Kategorie
Bürofläche
Baujahr
1932
Bezug
nach Vereinbarung
Geschoss
3. Geschoss
Energie & Heizung
Warum sehe ich diese Anzeige? – Du siehst diese Anzeige basierend auf Ihrer Navigation auf unserer Website und den Suchkriterien, die du verwendet hast.
Weitere Energiedaten
Heizungsart
Zentralheizung
Details
Objektbeschreibung
Die denkmalgeschützte Büroetage repräsentiert eine Verbindung zwischen vergangener Eleganz und modernem Arbeitsleben. Die Erhaltung der historischen Architektur stellt eine besondere Herausforderung dar, da sie gleichzeitig den Anforderungen zeitgemäßer Büroarbeit gerecht wird.
Eine Kombination aus Großraumbüro und...
Ausstattung
Besondere Ausstattungsmerkmale: Aufzug/Fahrstuhl, DV-Verkabelung vorhanden
Weitere Informationen
Sonstiges
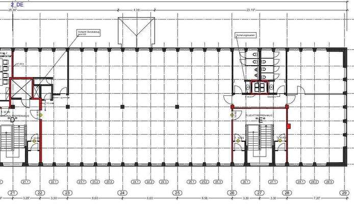
Alle INFORMATIONEN ZU DIESEM ANGEBOT, mehr Fotos sowie Pläne/Grundriss bekommen Sie über das Expose auf unserer Internetseite. Die vollständige ANSCHRIFT können Sie ebenfalls über das Kontaktfeld im Expose auf unserer Internetseite anfordern. Hier können Sie auch eine Video-Besichtigung machen. Verwenden Sie...
Anbieter der Immobilie

Dipl. Ing. Kühne GmbH
Brandensteinweg 6, 13595 Berlin
Online-ID: 2bljf5d
Referenznummer: 330008187
Finde Angebote wie dieses
Hier geht es zu unserem Impressum, den Allgemeinen Geschäftsbedingungen, den Hinweisen zum Datenschutz und nutzungsbasierter Online-Werbung.