
RUHR REAL GmbH
Herr Samuel Kruse
+49 ···
Nr. anzeigenPreise & Kosten
Provision für Mieter
provisionsfrei
Warum sehe ich diese Anzeige? – Du siehst diese Anzeige basierend auf Ihrer Navigation auf unserer Website und den Suchkriterien, die du verwendet hast.
Lage
Das markante Objekt befindet sich im Essener Südviertel. Durch die nahegelegenen Autobahnen A40 sowie A52 ist eine flexible Anreise mit dem PKW garantiert. Eine U-Bahn Haltestelle befindet sich in unmittelbarer Nähe zum Objekt. Hier finden Sie zahlreiche attraktive Einkaufsmöglichkeiten, sowie ein breites gastronomisches...
Büro-/Praxisfläche
Kategorie
Bürofläche
Baujahr
2002
Bezug
kurzfristig
Derzeitige Nutzung
frei
Energie & Heizung
Warum sehe ich diese Anzeige? – Du siehst diese Anzeige basierend auf Ihrer Navigation auf unserer Website und den Suchkriterien, die du verwendet hast.
Wärme
Strom
Energieausweistyp
Bedarfsausweis
Gebäudetyp
Nicht-Wohngebäude
Baujahr laut Energieausweis
2017
Wesentliche Energieträger
Fernwärme
Endenergiebedarf (Wärme)
36,00 kWh/(m²·a)
Endenergiebedarf (Strom)
22,00 kWh/(m²·a)
Weitere Energiedaten
Energieträger
Fernwärme
Details
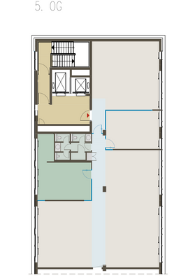
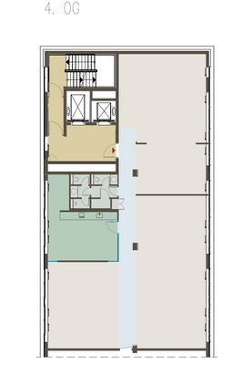
Objektbeschreibung
Bei der Büroimmobilie handelt es sich um ein modernisiertes Objekt in direkter Nähe zur Essener-City. Neben weitreichenden Fensterfronten verfügt das Gebäude außerdem über Glasfaserkabel und eine hauseigene Tiefgarage. Die großflächigen Etagen können über Personenaufzüge erreicht werden und sind sowohl mit einer Klimaanlage...
Ausstattung
. Sonnenschutz: außenliegend
. Akustik-/Deckensegel
. Bodenbelag: Laminat- & Teppichboden
. Verkabelung: Glasfaserverkabelung
. Kabelführung: Bodentanks
. Beleuchtung: arbeitsplatzgerechte Beleuchtung
. Teeküche: voll ausgestattet
. Aufzug: Personenaufzug
. Barrierearm: Ja, ebenerdiger Zugang
...
Preisinformation
Nettokaltmiete: 13,50 EUR
Weitere Informationen
Sonstiges
Es gelten ausschließlich unsere AGB (www.ruhr-real.de/agb). Wir möchten Sie darauf hinweisen, dass die Angaben ausschließlich auf den uns vom Eigentümer übermittelten Unterlagen und Informationen basieren. Für Richtigkeit und Vollständigkeit übernehmen wir keine Gewähr. Zwischenvermietung...
Anbieter der Immobilie

RUHR REAL GmbH
Holsterhauser Platz 2, 45147 Essen
Online-ID: 2bpcc5k
Referenznummer: 372/E5
Finde Angebote wie dieses
Hier geht es zu unserem Impressum, den Allgemeinen Geschäftsbedingungen, den Hinweisen zum Datenschutz und nutzungsbasierter Online-Werbung.