

Maklerbüro Andreas Schörner & Co.
Herr Ulf Richter
035 ···
Nr. anzeigenPreise & Kosten
Provision für Käufer
7,14%
Lage
Die Immobilie befindet sich im Ortsteil Groß Lübbenau der Spreewaldstadt Lübbenau in dörflicher Umgebung aber mit bester Straßenanbindung.
Entfernungen:
Autobahnauffahrt: ca. 1 km
Lübbenau: ca. 5 km
Cottbus: ca. 28 km
Berlin (südl.Stadtrand): ca. 80...
Das Haus
Baujahr
1985
Bezug
nach Vereinbarung
Derzeitige Nutzung
frei
Energie & Heizung
Warum sehe ich diese Anzeige? – Du siehst diese Anzeige basierend auf Ihrer Navigation auf unserer Website und den Suchkriterien, die du verwendet hast.
Energieausweistyp
Bedarfsausweis
Gebäudetyp
Wohngebäude
Baujahr laut Energieausweis
1985
Wesentliche Energieträger
Kohle
Effizienzklasse
H
Endenergiebedarf
252,00 kWh/(m²·a)
Weitere Energiedaten
Haustyp
Massivhaus
Energieträger
Holz, Kohle
Heizungsart
Zentralheizung
Details
Objektbeschreibung
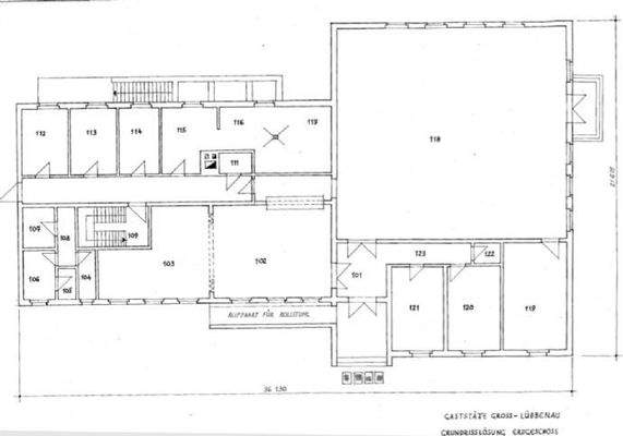
Ehemaliger Landgasthof, als Bergbauersatzbau in den 80er Jahren sehr großzügig geplant und massiv gebaut. Das Haus ist eingeschossig und teilunterkellert. Die Nutzfläche im EG beträgt ca. 450 m², der Keller ist ca. 140 m² groß. Das Objekt ist schon mehrere Jahre ungenutzt. Das Dach wurde vor 2 Jahren komplett erneuert...
Ausstattung
Ohne
Weitere Informationen
Sonstiges
Bitte geben Sie bei Anfragen neben der Emailadresse auch eine Telefonnummer an, es kommt öfter vor, das Emails nicht ankommen, wir haben dann eine zweite Möglichkeit, mit Ihnen in Kontakt zu treten. Bitte haben Sie Verständnis dafür, dass wir nur Anfragen mit vollständigen und plausiblen Kontaktdaten beantworten...
Dokumente
Anbieter der Immobilie

Online-ID: 2brpv5h
Finde Angebote wie dieses
Hier geht es zu unserem Impressum, den Allgemeinen Geschäftsbedingungen, den Hinweisen zum Datenschutz und nutzungsbasierter Online-Werbung.